1925 р. Деревяні дзвіниці і церкви Галицької України
Церква в c. Курники, біля Яворова 1616 р. (рис. 48-51).
Курники, глухий закуток Яворівщини, в 10 км від желізниці Шкло. Церква серед віковічних величезних дубів, покладена з дубу і смереки. Рік заложеня церкви можна встановити тільки по тематизмі Перем. Епархії. За XVII ст. говорять і місцеві перекази і давність матеріялу будови, характер і стиль бані. При обмірах знайдено під дзвіницею деревяний різьблений хрест тонкого мистецького виконаня 1689 р. [у збірках Національного музея у Львові] В церкві є багато мальованих образів ріжних школ і часу, деякі XVII ст. Звертають на себе увагу ікони з рисунками церков, типових для киівского барокко.
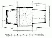
Церква має особливий план: середня нава – прямокутник, бабинець і вівтар – трапеції. Сей план церкви заложено не випадково (рис. 49), тільки він має якесь глибше значіня для архитектурноі естетики.
Форма бані з середини наближається у профілі до гіперболи; зовні вона двох-ярусна з восьмибічним накритям майже стіжкового типу. Форма маківки у виді цибульки, значно ширшої від літхтаря (барабана), зустрічається в укр. архитектурі хиба в найстарших церквах, переважно Галичини нпр. св. Юра, в Дрогобичі.
З північного і південного боку середньої частини прибудови зявилися лише в XIX ст. (На рис. 49. пізніщі прибудови зазначено точками, а на рис. 48 – загальними обрисами).
З деталів особливо інтересний гзимс середньої бані з досить складним профілем і різьбою, також хрест з бляхи нескладноі форми, але з гарним сілуетом (рис. 51). Біля церкви багато старовинних камених нагробних хрестів, де-які з датами XVIII ст., ріжноманітноі форми. Дзвіниця теж дуже старого типу (рис. 7).
Яворівщина ще дуже мало досліджена. З літератури про неі слід вказати на статю про церкви Яворівщини Ю. Ліпковского („Kalendarz powszechny”, r. 1862-1863). З найстарших церков Яворівщини, крім обміряних автором, є в с. Вільшаниця 3-банна XV ст. (?), у Прилбичах, Хотинці 3-банна з галерійкою 1615 р. (Лушпинського, т. XXVII).
Джерело: Січинський В. Деревяні дзвіниці і церкви Галицької України XVI – XIX ст. – Льв.: 1925 р., с. 44.
