1999 р. Звід пам’яток Києва
Марія Гончаренко
Житловий будинок працівників «Київенерго», 1930 – 1 pp.
(apхіт.).
Вул. Братська, 4.
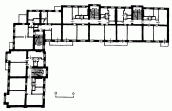
На розі вулиць Братської та Андріївської, у зоні старої забудови міста, що не має яскраво виражених композиційних акцентів. Збудований за проектом арх. Громницького. Відзначається високим професіоналізмом у вирішенні всього об’єму та окремих його елементів. Належить до пізнього конструктивізму. Планувальне та об’ємно-просторове вирішення наріжного чотириповерхового цегляного будинку зумовлено спробою дати оптимальну орієнтацію житловим і робочим приміщенням. Тому крило на вул. Андріївській має більш площинне вирішення. В основу планування покладено два типи сек цій – рядову і наріжну що з єднує крила. У секціях, які мають парадний та дворовий входи, розташовано дво-і трикімнатні квартири з повним комплексом санітарно-технічних приміщень. В об’ємно-просторовому вирішенні будинку простежується харак терна риса конструктивізму – динамічність горизонтальних мас, які схо дяться в ускладненій композиції виділеного наріжного об’ему. У вирішенні окремих деталей та елементів фасадів, звернених до вулиці (огорожі, тяги вінцевий карниз тощо), проступає архітектурна стилістика періоду 1930-х рр., спрямована на творче використання класицистичної архітектурної спадщини. Дворовий фасад нетинькований, відбиває планувальну структуру будинку.
Хаустов П. Контури генерального плану Києва // Соц. Київ. – 1934. – № 7 – 8.
Джерело: Звід пам’яток історії і культури України. – К.: 1999 р., т. 1 (Київ), с. 378.
