2003 р. Звід пам’яток Києва
Ярослав Тинченко, Тетяна Трегубова
429. Печерське міське парафіяльне училище 1901–02, де містилася Третя київська школа прапорщиків (архіт., іст.).
Вул. А. Іванова, 11. Неподалік від перетину з вул. Московською, на червоній лінії забудови колишнього пров. Бутишева, окремо від сусідньої забудови.
Споруджено у садибі відкритого в 1809 Печерського парафіяльного училища, яке в кін. 19 ст. займало одноповерховий дерев’яний будинок, що кілька разів ремонтувався за участю арх. О. Кривошеєва. У 1901 Київська Міська дума ухвалила рішення про зведення нового цегляного будинку для міського училища. Його майбутній абрис було визначено проектним завданням, складеним за тогочасними вимогами шкільної гігієни з урахуванням параметрів класних кімнат і рекреацій, умов освітлення, провітрювання й опалення.
Будинок планувався двоповерховим, розрахованим на можливу надбудову третього поверху, з коридорною системою внутрішнього планування, де класи були орієнтовані в бік вулиці, коридори – на подвір’я. Кожен поверх мав складатися з трьох великих класних кімнат (площа бл. 70 кв. м, вис. 4,0–4,5 м), приміщення для ручної праці й рукоділля, рекреаційного коридору, розрахованого на 150 учнів, роздягальні, передпокою, вчительської, бібліотеки, кімнати для лікарського огляду, а також швейцарської з окремим входом (нижній поверх) та ізольованого помешкання для завідувачки (верхній поверх). Перший поверх відводився для чоловічого училища, другий – для жіночого.
Проектування було доручено арх. О. Кривошеєву. Проект і кошторис розглянуто будівельною комісією Міської думи у жовтні 1901, 17 листопада ухвалено присутствієм Міської управи. У грудні оголошено торги на виконання робіт, в яких взяли участь 11 підрядників. Переміг інж. О. Уманцев. 13 вересня 1902 він звітував про завершення будівництва.
У 1957–58 споруду надбудовано на один поверх з деякою зміною внутрішнього планування.
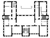
Триповерховий на цокольному поверсі, цегляний, у плані П-подібний, з внутрішнім подвір’ям, розкритим у глибину кварталу. Перекриття пласкі по дерев’яних і металевих балках, дах вальмовий, критий бляхою. Внутрішнє планування коридорне з двобічним розташуванням приміщень, окрім центральної частини другого поверху, де зберігся первісний рекреаційний коридор, що освітлюється знадвору. Три сходові клітки на фасадах виділено розкріповками. Парадна по осі головного фасаду – з розгалуженими тримаршовими, бічні – з двомаршовими сходами.
Відзначається раціональністю зовнішнього та внутрішнього оздоблення. Екстер’єр будинку вирішено в цегляному стилі без застосування ліпленого декору. Ярусні членування позначено міжповерховими та підвіконними гуртами.
Стару двоповерхову частину від надбудови відокремлено карнизом і фризом, декорованим стрічками поребрика. Симетрію тектоніки головного фасаду визначають тривіконні центральний і бічні ризаліти із заокругленими наріжжями, які вирізняються вікнами з арковими перемичками на рівні другого поверху. Центральний ризаліт головної сходової клітки завершувався підвищеним напівкруглим щипцем (тепер на тлі надбудови сприймається як архівольт з поясом поребрика в обрамленні).
Архівольт, що спирається на фігурні лопатки, обіймає композицію з аркового вікна, фланкованого пілястрами та невеличкими вертикальними й круглими віконцями. Нижній поверх фасаду гладенький з прямокутними вікнами без лиштв, більш широкий проріз головного входу з лучковою перемичкою має обабіч вузькі вестибюльні вікна. Міжвіконня другого поверху декоровані широкими пілястрами, що підтримують профільовані обрамлення фрамуг аркових та лучкових віконних прорізів. Схожий мотив з пілястрів та обрамлення застосований у надбудованому третьому поверсі.
Пам’ятка – вдалий зразок шкільного будівництва поч. 20 ст.
В 1915–17 у будинку містилася Третя Київська (Бутишівська – за старою назвою провулка) школа прапорщиків.
Створена у березні 1915 для поповнення військових частин офіцерськими кадрами – переважно з числа студентів та гімназистів Києва. Викладачами були кадрові офіцери Київської залоги, які через важкі поранення не могли повернутися на фронт. За приблизними підрахунками, в роки війни школа випустила понад 2 тис. офіцерів. У звіті за січень 1917 головний інспектор військових навчальних закладів російської армії відзначив, що Третя школа найкраща не тільки серед київських, а й подібних шкіл прапорщиків Москви та Петрограда.
Під час жовтневого повстання 1917 у Києві Третя школа прапорщиків зайняла жорстку позицію щодо більшовиків.
В останній день повстання, 31 жовтня юнкери школи виступили проти червоногвардійців «Арсеналу», збільшовичених 3-го авіапарку й понтонного батальйону, заволоділи вулицями Московською й частково Микільською (тепер вул. Січневого повстання). Наступного дня командування школи спільно з юнкерами інших училищ готувало штурм «Арсеналу» та наступ на Маріїнський палац, де засідала Рада робітничих і солдатських депутатів, який не відбувся. Українська Центральна Рада взяла під свій контроль увесь Київ і дозволила юнкерам виїхати на Дон, де формувалася Добровольча армія генерала Л. Корнілова.
У грудні 400 офіцерів та юнкерів Третьої Київської школи на чолі з полковником М. Мастиком, підполковниками Б. Макаревичем та Дедюрою вирушили до Таганрога. Перед від’їздом вони прийшли до Педагогічного музею, перед яким відбувся прощальний мітинг з членами УЦР. На Дону вояки несли службу з охорони залізниць на Таганрожчині та Ростовщині. Їм доводилося не тільки роззброювати дезертирів, а й вести криваві бої з більшовицькими військами, що насувалися зі сходу. У лютому 1918 школа у складі Добровольчої армії вирушила у 1-й Кубанський («Льодовий») похід з метою створити на Кубані бази для дальшої боротьби з більшовиками. За кілька днів Третю Київську школу прапорщиків було розформовано: одна третина пішла на укомплектування 1-го Офіцерського полку, дві інші – Юнкерського батальйону.
Після від’їзду школи прапорщиків будинок передали Міністерству освіти Української народної республіки. 1922 тут було відкрито інтернат для дітей вчителів. 1924–26 приміщення займала школа для переростків, 1928–30 – лікнеп, 1932–33 – пункт приймання голодуючих дітей, пізніше – середня школа № 75. Під час нацистської окупації Києва будинок використовувався як казарма, після визволення міста 1943 – як госпіталь.
1945 відновлено роботу середньої школи № 75, яка міститься тут і дотепер.
Література:
Бібліотека с/ш № 75: Історія нашої рідної школи (рукопис); ДАК, ф. 163, оп. 21, спр. 180; оп. 41, спр. 4769, 4984, 5990; оп. 58, спр. 240; Історія Києва. – К., 1960. – Т. 1; Марковцы в боях и походах за Россию. – Париж, 1962. – Т. 1.
Джерело: Звід пам’яток історії і культури України. – К.: 2003 р., т. 2 (Київ), с. 901 – 902.
