1999 р. Звід пам’яток Києва
Віталій Отченашко
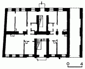
Житловий будинок, поч. 20 ст.
(архіт.).
Вул. Дмитрівська, 52.
На старій червоній лінії забудови вулиці. Триповерховий, цегляний, пофарбований, у плані прямокутний, з бічним проїздом. На поверсі було по дві однакові квартири (передпокій, кабінет, вітальня, їдальня, спальня, кухня, санвузол). Головний фасад має симетрично-осьову композицію. Його центральну вісь підкреслено арковим порталом головного входу і тривіконною частиною, об’єднаною по другому і третьому поверхах тричвертєвими колонами з капітелями корінфського ордера. Декоративне оформлення стіни, розділеної поверховими поясами, ускладнюється догори від прямокутних вікон з замковими каменями у вигляді модульйонів на першому і другому поверхах до аркових вікон третього поверху з лиштвами з напівколонок і архівольтів з замками у вигляді голівок у картушах. У рисунок фільончастих дверей головного входу вкомпоновано рік – 1903. Збереглося первісне планування і оздоблення приміщень – ліплення стель, розетки, карнизи, тяги, кахляні груби, паркети. Є прикладом поширеного на межі століть типу невеликих житлових будинків з жовтої київської цегли з архітектурними і декоративними деталями у стилі ренесанс.
Джерело: Звід пам’яток історії і культури України. – К.: 1999 р., т. 1 (Київ), с. 360.
