2003 р. Звід пам’яток Києва
Микола Коломієць, Тетяна Трегубова
324. Палац спорту, 1958–60 (архіт.).
Вул. Еспланадна, 1. Поряд з Центральним стадіоном, від проїжджої частини вулиці відокремлений широкою аванплощею.
Універсальна споруда, призначена для спортивних заходів, концертних вистав та масових зібрань.
Побудована за проектом архітекторів М. Гречини, О. Заварова, інж. В. Реп’яха (співавтори – архітектори В. Гречина, Ю. Євреїнов, В. Суський). Є однією з перших будівель у Києві, що знаменувала зміну спрямованості в архітектурній творчості, використання форм індустріальних виробів.
1983–84 проведено капітальний ремонт палацу (автори – архітектори Р.-Е. Гупало, В. Суський), замінено технічне обладнання.
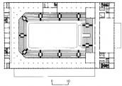
Об’ємно-планувальна структура призматичної споруди базується на використанні залізобетонного каркасу з мережею опор 6,0 × 6,0 м, що дало змогу уніфікувати основні конструктивні елементи. Зовнішні стіни виконано зі склопакетів, вмонтованих в алюмінієві рами. Перекриття зали здійснено по металевих фермах. В архітектурі будівлі все підпорядковано доцільності, зручності та простоті. Стіни розчленовані мережею опор каркасу та ажурними алюмінієвими переплетеннями. Гранична скупість пластики стін урізноманітнюється вхідними частинами з великими виступними піддашшями.
Основний об’єм призматичної споруди займає зала з прямокутною спортивною ареною, яку можна використовувати для проведення змагань з 30 видів спорту (в т. ч. й льодових). Її трибуни вміщають від 8286 до 12 тис. глядачів.
Збільшення числа місць досягається трансформацією сцени на трибуну для глядачів. У 1980-х рр. змонтовано підвісні стелі, встановлено огородження трибун, стіни облицьовано алюмінієвими панелями.
Навколо зали розташовані фойє, вестибюль з гардеробами та необхідні допоміжні приміщення. Оздоблення інтер’єрів суто функціональне, після ремонту вони набули більш урочистого вигляду. На першому поверсі у вестибюлі стіни облицьовано травертином, підлоги викладено гранітними плитами.
З фойє другого поверху на третій поверх ведуть мармурові сходи. На третьому поверсі влаштовано прес-центр.
Організація і взаємозв’язок приміщень зручні, чіткі та економні, передбачено швидку евакуацію глядачів.
Завдяки вдалому функціональному вирішенню палац залишається однією з визначних громадських споруд Києва свого часу.
Література:
Архитектура Советской Украины / В. П. Дахно, С. К. Килессо, Н. С. Коломиец и др. – К., 1986; Архитектура Украины на современном етапе / В. П. Дахно, В. И. Ежов, С. К. Килессо и др. – К., 1984; Головко Г. В., Ігнатов О. Н., Коломієць М. С. Архітектура України на новому етапі. – К., 1964; Нариси історії архітектури Української РСР (радянський період). – К., 1962.
Джерело: Звід пам’яток історії і культури України. – К.: 2003 р., т. 2 (Київ), с. 835 – 836.
