1999 р. Звід пам’яток Києва
Михайло Кальницький, Віктор Чепелик
Комерційне училище, 1911 – 12 рр.
(архіт., іст.).
Пров. Ч. Бєлінського, 3.
В глибині провулка, що вливається в бульв. Т. Шевченка. Збудовано за проектом арх. В. Коробцова для т. зв. комерційного училища 1-го товариства викладачів (середній змішаний навчальний заклад).
Після влаштування училища безіменний провулок, що вів до нього, отримав назву Комерційного (сучасна назва – з 1926). Первісно училище мало адресу – Бібіковський бульв., 54 (нині бульв. Т. Шевченка).
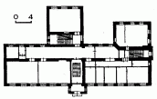
Будинок триповерховий, з підвалом. У плані ускладненої форми: з основного прямокутного корпусу в глибину подвір’я виступають два об’єми для окремих аудиторій. Уздовж корпусу тягнеться широкий рекреаційний коридор, освітлений вікнами. До нього прилягають аудиторії, а також парадна і допоміжна сходові клітки. На третьому поверсі південно-західне крило замикає актова зала. Будівля складалася з 14 аудиторій, учительської, кабінетів і розташованих у напівпідвалі приміщень їдальні, майстерень та складів. Головний фасад – симетричного вирішення. З площини стін виступають центральний і два бічних ризаліти. Первісно вони були перекриті наметовими дахами із заломами (ліквідовані після 1947 р.). Це надавало ризалітам вигляду веж, які відігравали важливу композиційну та художню роль. По вертикалі фасад розчленовано на два яруси: нижній, що включає напівпідвальний і перший поверхи, завершено орнаментальним фризом на рівні фрамуг вікон; другий охоплює два верхніх поверхи з великими вікнами прямокутної і трапецієподібної форми, характерної для українського народного стилю періоду модерну. Будівлю увінчано дерев’яним карнизом. Поле фасадної стіни виконано в цеглі під розшивку швів, декоровано трикутними нішками, хрещатими пазами та ліпними деталями.
Центральний вхід з трапецієподібним порталом оформлено як тамбур, що наближає його до силуету української хати. Обабіч порталу виліплено квіти маку. Об’єм тамбура оперезано двома ліпними фризами з гілками і розетками ренесансного характеру. Портал тамбура та розташовані над ним прорізи верхніх поверхів утворюють єдину вертикальну композицію, завершену трапецієподібним вікном, облямованим ліпними арабесками у вигляді стебел із бутонами маку. На бічних ризалітах подібні композиції включають декоративні вставки з синьо-фіолетових полив’яних кахлів та ліпні орнаменти з квіток маку. В нижній частині лівого ризаліту виділяється портал входу до напівпідвалу. Портал складається з лиштви і трапецієподібного сандрика, що нагадує за формою різьблені плічка українських народних саней. В інтер’єрі основних приміщень збереглося оздоблення у вигляді розеток, фризів, тяг, а також профільовані лиштви.
Пам’ятка належить до числа цікавих зразків українського народного архітектурного стилю поч. 20 ст., заснованого арх. В. Кричевським. В училищі викладали у різний час математик О. Астряб, історик та державний діяч В. Прокопович, педагог і громадська діячка С. Русова, художниця О. Натансон, громадсько-політична діячка В. Тучапська та ін. Тепер – середня школа № 58.
Гіляров О. Архітектура Києва передвоєнної доби // Соц. Київ. – 1936. – № 4;
Календарь: справочная и адресная книга г. Киева на… (1913- 1914) год. – К., 1912 – 1913;
Чайка П. Дещо про архітектуру // Сяйво. – 1913. – № 1;
Чепелик В. В. Київський осередок розвитку народних традицій в архітектурі початку XX ст. // Етнографія Києва і Київщини: традиції і сучасність. – К., 1986;
Його ж. Народні традиції в архітектурі Києва 1920- 1940 років // Нар. творчість та етнографія. – 1982. – № 2;
Його ж. Пам’ятки народно-стильової архітектури // Пам’ятки України. – 1986. – № 2;
Ясиевич В. Е. Архитектура Украины на рубеже XIX-XX веков,- К., 1988.
Джерело: Звід пам’яток історії і культури України. – К.: 1999 р., т. 1 (Київ), с. 472.
