1999 р. Звід пам’яток Києва
Олена Авраменко, Михайло Кальницький
Житловий будинок, серед. 19 ст.
(архіт.).
Вул. Костянтинівська, 18.
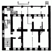
На червоній лінії забудови вулиці. Первісний об’єм зведено у серед. 19 ст. за типовим проектом № 1, спочатку дерев’яний, одноповерховий, на цегляному цокольному поверсі. У 1872 р. розширено вхідним тамбуром зі сходами і перебудовано із спорудженням цегляного другого поверху на замовлення дружини офіцера Г. Казанської (в другому шлюбі – Горська). У 1990-х pp. будинок капітально відремонтовано із збереженням фасаду. Первісно в глибині ділянки по її периметру містилися цегляні й дерев’яні службові будівлі, в одній з яких був невеликий миловарний завод (не збереглися). Двоповерховий, цегляний, прямокутний у плані. Симетрична композиція фасаду й архітектурні деталі вирішено у формах пізнього класицизму. Оздоблення фасаду стримане: карнизи першого й другого поверхів чітко членують його на яруси, віконні прорізи обрамлено сухариками, вінцем вертикальних членувань слугує ланцюжок рустів, імітованих цегляною кладкою. Із затилля були дерев’яні галереї (пізніше закладені). Будинок є характерною спорудою доби пізнього класицизму в Києві.
ДАК, ф. 17, оп. 5, спр. 665, 672; ф. 143, оп. 1, спр. 104;
ДАКО, ф. 1542, оп. 1, спр. 421.
Джерело: Звід пам’яток історії і культури України. – К.: 1999 р., т. 1 (Київ), с. 488 – 489.
