1999 р. Звід пам’яток Києва
Людмила Рилкова
Особняк 1892 р., в якому містився польський театр «Студія»
(архіт., іст.).
Вул. Круглоуніверситетська, 10.
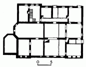
На ділянці різкого зниження рельефу, що зумовило висоту будинку – ліве крило головного фасаду одноповерхове, праве і дворовий фасад – двоповерхові. Першим власником садиби у 1838 р. була дружина генерал-лейтенанта У. Ловцова (Сулима), у 1848 р. площа садиби розширюється за рахунок вільного місця поруч з нею. З 1859 р. власники садиби – родина генерал-майора Савицького. На ділянці було декілька дерев’яних будівель. У 1887 р. садибу розділили між братами О. та А. Савицькими. У 1892 р. титулярний радник А. Савицький зводить фасадний будинок за проектом арх. А. Краусса.
У 1916 р. у зв’язку з розташуванням тут польського експериментального камерного театру «Студія» С. Висоцької у вітальні на другому поверсі влаштовано глядацьку залу на 100 місць і сцену, зроблено часткове перепланування вхідних приміщень. Сцена влаштована на одному рівні з першим рядом крісел без рампи. Двоповерховий, цегляний, тинькований, пофарбований у два кольори. Головний фасад вирішено у формах неокласицизму. Об’ємно-просторова композиція асиметрична. Розкріповка фасаду, насиченість прямокутними віконними прорізами надають невисокому видовженому будинку певної вертикальності. До бічного фасаду прилягала ґранчаста у плані лоджія, пізніше перебудована у додаткове приміщення. З боку вулиці його глуха стіна оформлена декоративною нішею, з боку подвір’я влаштовано відкриту галерею (тепер перероблену на віконні прорізи). Сандрики з замковим каменем, фриз і декор ніші доповнюють виразність особняка. Планування приміщень коридорно-анфіладне. Перекриття плоскі. На другому поверсі зберігся поліхромний ліпний декор, який повністю вкриває стелі зали й декількох кімнат. Тривале використання будинку різними установами та проведені ремонти дещо змінили його зовнішній вигляд і планування помешкань.
Є зразком особняка кін. 19 ст., в якому збереглося первісне декоративне оформлення інтер’єрів.
У вересні 1916 – січні 1918 р. у будинку містився польський театр «Студія», власницею якого була Висоцька Станіслава-Марія (1878 – 1940). Вона поєднувала режисерську та акторську діяльність із студійними заняттями з молоддю. Театр відкрився трагедією «Правда» польського письменника М. Чайковського. Протягом 1916 – 18 рр. тут відбулися вистави за творами: Ю. Словацького «Балладина», М. Метерлінка «Сестра Беатриса», П. Корнеля «Сід», О. Фредро «Тітонька», Г. Ібсена «Примари». Серед акторів – Н. Млодзейовська, М. і М. Шпакевичі, Б. Шуркевич, а також Ярослав Івашкевич (1894 – 1980) – письменник і громадський діяч, який виконував одночасно обов’язки літературного керівника театру. Вистави відбувалися чотири рази на тиждень. У січні 1918 р. внаслідок муравйовського артобстрілу міста театральна зала зазнала значних пошкоджень, після чого театр «Студія» припинив свою діяльність. Тепер тут міститься Представництво Комісії Європейського Союзу.
ДАК, ф. 163, оп. 41, спр. 4288;
ДАКО, ф. 1, оп. 252, спр. 219;
Ивашкевич Я. Театр «Студия» Станиславы Высоцкой в Киеве // Вопросы театра. – М., 1965.
Джерело: Звід пам’яток історії і культури України. – К.: 1999 р., т. 1 (Київ), с. 504.
