1999 р. Звід пам’яток Києва
Сергій Білокінь, Михайло Кальницький, Тетяна Скібіцька
Житловий будинок 1908 р., в якому проживали Вербицький О. М., Міхновський Ю. М.
(архіт., іст.).
Вул. Лютеранська, 15.
У ряді щільної периметральної забудови.Зведено за проектом арх. О. Вербицького. Під час Великої Вітчизняної війни зруйновано, у 1948 р. відбудовано з частковим переплануванням.
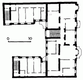
Триповерховий з цокольним напівповерхом, цегляний, у плані П-подібний, трисекційний: з чоловою двоквартирною і двома одноквартирними секціями в дворових крилах. Парадні приміщення виділено на фасаді еркерами і балконами, які формують асиметричну композицію. Особливістю фасаду, виконаного в стилі раціонального (конструктивного) модерну, є контраст фактур – кольорових керамічних плиток, гладенької площини стін і штучного каменю з колотою поверхнею у цоколі. Глазурованою плиткою синьо-зелених тонів акцентовано підвіконні площини і фриз із стрічкою геометризованого рослинного орнаменту. Асиметрію фасаду підсилено завершенням лівого еркера щипцем, у полі якого – кольорове майолікове панно із зображенням Пана, що грає на сопілці, та двох німф на тлі пейзажу (виконано О. Вербицьким і А. Козловим в Абрамцевській керамічній майстерні). В оформленні фасаду використано також художній метал у деталях огорожі. Відповідно до авторського проекту ріг праворуч по фасаду мав завершення у вигляді вежки зі шпилем (не збудовано). Втрачено частину карниза і балюстраду.
Будинок – одна з небагатьох пам’яток, на фасаді якої зберігся монументальний живопис.
У дорадянський період тут проживав Вербицький Олександр Матвійович (1875 – 1958) – архітектор, інженер, педагог, за проектами якого споруджено адміністративний будинок Південно-Західної залізниці (1910 – 12 рр., вул. Пушкінська, 14), ряд житлових будинків (вулиці Банкова, 12; Володимирська, 22; Рейтарська, 20) у Києві, фабрику у м. Малині (1906 – 07) тощо.
У 1930-х pp. в квартирі № 13 мешкав Міхновський Юрій Михайлович (1866 – 1937) – церковний діяч, архієпископ УАПЦ, настоятель Софійського собору (з 1932). Під час голодомору 1932 – 33 рр. брав участь в організації допомоги голодуючим. У 1936 р. позбавлений права служити. У 1936 – 37 рр. збирав підписи за відкриття бодай одного храму у Києві. 11 липня 1937 р. заарештований органами НКВС, розстріляний 16 жовтня 1937 р.
ЦДАГОУ, ф. 263, оп. І, № 61960 ФП / кор. 1637;
Білокінь С. Пам’ятки УАПЦ 1921 року в Києві // Відомості митрополії УАПЦ у діаспорі. – Лондон, 1997. – Жовтень. – Ч. 4;
Його ж. Розстрільна справа архієпископів УАПЦ Володимира Самборського та Юрія Міхновського // Розбудова держави. – 1993. – № 3;
Кохан С. В., Кілессо С. К. О. М. Вербицький – архітектор і педагог. – К., 1968.
Джерело: Звід пам’яток історії і культури України. – К.: 1999 р., т. 1 (Київ), с. 525.
