1999 р. Звід пам’яток Києва
Наталія Стависька
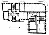
Житловий будинок, 1908 р.
(архіт.).
Вул. Жилянська, 39/92.
Великий наріжний будинок є важливим просторовим орієнтиром на перехресті вулиць Жилянської та Володимирської. Збудований у стилі модерн за проектом арх. Ф. Олтаржевського. У 1980-х рр. здійснено внутрішню реконструкцію. Чотириповерховий, цегляний, з двох прямокутних у плані секцій різної довжини об’єднаних заокругленим наріжним об’ємом. Кожна з них була розрахована на 8 квартир. Частину першого поверху з боку найдовшого крила на вул. Жилянській було відведено під магазин. Проїзд на подвір’я розташований на вул. Володимирській на рівні додаткового цокольного поверху, створеного через перепад рельєфу. Наріжний об’єм будинку, виділений вертикальними лопатками, є центром об’ємна просторової композиції. Його завершує експресивний за формою щипець з наріжною нішею з напівциркульною перемичкою продовженою до рівня підлоги четвертого поверху. У нішу вписано невеликі заокруглені балкончики. На рівні другого і третього поверхів ріг огинають великі балкони, що охоплюють по п’ять прорізів. Кожний з бічних фасадів розчленовано по вертикалі двома розкріповками, які завершуються аттиками прикрашеними у верхніх частинах вишуканими ліпними вставками з характерними для модерну рослинними мотивами. Зрушення вікон по вертикалі підкреслює положення парадних сходів. Архітектурний декор фасадів доповнюють модерністичні горизонтальні тяги, ажурні металеві огорожі балконів різного рисунка, ліплення та руст.
ДАКО, ф. 289, оп. 1, спр. 2652.
Джерело: Звід пам’яток історії і культури України. – К.: 1999 р., т. 1 (Київ), с. 360 – 361.
