1999 р. Звід пам’яток Києва
Марія Кадомська, Олена Лисенко
Житловий будинок 1899 – 1902 рр., в якому проживав Химиченко О. В.
(архіт., іст., мист.).
Вул Володимирська, 39/24.
На розі вулиць Володимирської і Прорізної. Збудовано архітектурною фірмою Шимана та Гілевича на замовлення П. Григоровича-Барського (автор проекту – арх. К. Шиман, інж.-будівничий О. Гілевич). Під час спорудження від збанкрутілого замовника будинок перейшов у власність багатого купця О. Сироткіна. На першому поверсі будівлі містилося відоме у Києві кафе «Маркіз» (згодом ресторан «Чайка», пізніше – «Лейпціг») із затишною двосвітною залою. Під назвою «Маркіз» кав’ярня згадується в романі М. Булгакова «Біла гвардія».
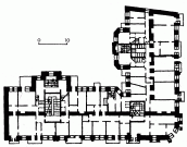
Чотириповерховий, у плані Г-подібний, трисекційний, з комфортабельними п’яти-, шестикімнатними квартирами. Стилістика будинку еклектична, переважають риси ренесансної архітектури у поєднанні з елементами бароко. У вирішенні великих вікон наріжної частини виявився вплив стилю модерн.
Чільні фасади різної довжини мають симетрично-осьову композицію. Їхні центральні осі й фланги акцентовано ускладненими завершеннями у вигляді фігурних аттиків і дахових вежок. Наріжжя увінчувала гранчаста вежа, що мала високу ренесансну баню з ліхтариком і шпилем (втрачена). Розкріповки фасадів завершено мансардними вікнами складних абрисів, які завершувалися фронтонами з цибулястими маківками. Декор чільних фасадів відзначається пишністю, багатством архітектурних деталей високого рельєфу, круглої скульптури та орнаменту. Привертає увагу скульптурна композиція з двох напівлежачих жіночих постатей під карнизом. На окремих балконах збереглися оригінальні литі й ковані ґрати. Інтер’єри квартир були розкішно оздоблені ліпленням, грубами з рельєфними кахлями. Завдяки багатому оздобленню будинок став відомою архітектурною пам’яткою міста.
У 1900 – 1910-х рр. у будинку мешкав Химиченко Олександр Васильович (1856 – 1947) – музикант, флейтист. У ці роки – соліст оркестру київської опери, викладач музичного училища, з 1913 р. – професор Київської консерваторії.
Тепер перебуває на реконструкції, внутрішнє оздоблення втрачене.
ДАК, ф. 163, оп. 41, спр. 5717;
Киевлянин. – 1901. – № 347.
Джерело: Звід пам’яток історії і культури України. – К.: 1999 р., т. 1 (Київ), с. 264.
