1999 р. Звід пам’яток Києва
Михайло Кальницьхий,Тетяна Маніфасова
Житловий будинок 1907 р., в якому містилася гімназія Левандовської М. І., де працювали відомі діячі науки і культури
(архіт., іст.).
Вул. Володимирська, 81.
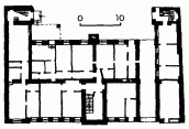
На червоній лінії забудови вулиці, на рельєфі зі значним ухилом. Зведено на замовлення київського будівничого-підрядчика Я. Файбишенка (частину приміщень займала будівельна контора домовласника). Основний об’єм будинку – чотириповерховий, цокольний поверх має значний перепад. Цегляний, прямокутний у плані, односекційний, розрахований на вісім квартир, з двома значного виступу ризалітами чорних сходів на затиллі. Центральний парадний вхід з ґанком піднятий до середини рівня цокольного поверху. Композиція фасаду, вирішеного у стилі модерн, основана на симетрично-осьовій схемі побудови, єдиним відступом від якої є бічне розташування наскрізного проїзду на подвір’я. Центральну вісь сформовано вертикаллю сходової клітки з трьома вікнами, зміщеними стосовно вікон житлових кімнат. Важливу роль в архітектурному вигляді будинку відіграють лоджії та еркери, розташовані симетрично по краях фасаду. Лоджії мають характерні для модерну криволінійні форми. Динамізм фасаду посилюється увігнутістю карниза, ілюзорна рухливість якого заспокоюється аттиками. Стіни декоровано ліпними вставками й цегляним орнаментом. Вишуканість архітектурних деталей ставить будинок у ряд найцікавіших витворів домобудування у стилі модерн.
На поч. 20 ст. на третьому – четвертому поверхах будинку містилася приватна жіноча гімназія М. Левандовської, в якій у різний час працювали історик літератури В. Адріанова-Перетц (викладач російської), мистецтвознавець С. Гіляров (викладач педагогіки), протоієрей В. Липківський (законовчитель), природознавець П. Тутковський (голова педагогічної ради).
Календарь: Адресная и справочная книга г. Киева на… (1909 – 1915) год. – К., 1909 – 1914.
Джерело: Звід пам’яток історії і культури України. – К.: 1999 р., т. 1 (Київ), с. 259.
