1999 р. Звід пам’яток Києва
Олена Аврамеяко, Сергій Кот
Житловий будинок 1893 р., В якому проживав Моргілевський І. В.
(архіт., іст.).
Вул. Смирнова-Ласточкіна, 13.
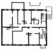
Фіксує стару лінію забудови кол. Вознесенського узвозу. Двоповерховий, дерев’яний, у плані прямокутний, з коридорним плануванням, перший поверх обкладено цеглою, другий – обшито дошками. Симетричну в цілому композицію головного семивіконного фасаду підкреслюють два бічних трикутних фронтони. Карниз великого виносу з ажурними підзорами підтримують дерев’яні фігурні кронштейни. Поля невисоких трикутних фронтонів і фриз прикрашено різьбленими вставками. Рисунок різьблення змішаного геометрично-рослинного характеру. Вдалі пропорції будинку, якість пророблення деталей вказують на високий професійний рівень архітектора.
Композиційне з будинком пов’язана цегляна огорожа з брамою, яку виконано в архітектурних формах першого поверху.
Один з небагатьох зразків, що збереглися, малоповерхового дерев’яного житла середньозаможних верств населення, поширеного на периферійних вулицях Києва в 2-й пол. 19 ст.
У цьому будинку з кін. 1930-х pp. і до 1942 р. проживав Моргілевський Іполит Владиславович (1889 – 1942) – історик архітектури, чл.-кор. Академії архітектури СРСР (з 1941), професор художнього та інженерно-будівельного інститутів.
Займався викладацькою та науковою діяльністю, брав участь у роботі технічних рад конкурсних комісій із забудови Києва. Визнанням творчих здобутків ученого стало введення його до складу реставраційних комісій при образотворчому управлінні Комітету у справах мистецтв при РНК СРСР (1938), обрання членом постійних комісій з реставрації та збереження архітектурних пам’яток та членом наукової ради Академії архітектури СРСР (1940). Під час Великої Вітчизняної війни залишався в окупованому Києві, жив у нужді, голодував. Помер 7 грудня 1942 р. у себе вдома. Займав квартиру № 2 на другому поверсі.
В 1993 р. на фасаді будинку встановлено бронзову меморіальну дошку з горельєфним портретом І. Моргілевського (ск. М. Шутілов, арх. Д. Антонюк).
Асеев Ю. Ипполит Владиславович Моргилевский // Стр-во и архитектура. – 1980. – № 8.
Джерело: Звід пам’яток історії і культури України. – К.: 1999 р., т. 1 (Київ), с. 373.
