2003 р. Звід пам’яток Києва
Олександр Тищенко
482. Садиба Міллера Б. С., 1893–94 (архіт.).
Вул. Жилянська, 38. Майже прямокутна у плані ділянка садиби розвивалась углиб внутрішньоквартального простору. На червону лінію забудови вулиці виходить невеликий, але виразний за архітектурною пластикою фасадний будинок. Його акцентна роль підсилена значним виступом уперед відносно забудови сусідніх ділянок.
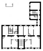
Садиба утворює у плані П-подібний комплекс з послідовно прибудованими один до одного трьома будинками: головним, навчальним та господарським.
Тепер подвір’я комплексу розкрите в бік сусідньої ділянки (колишній № 40, нині поєднаний з № 38).
Усі споруди зведено за проектом і під керівництвом арх. А. Краусса у садибі німецького підданого Б. Міллера. У конфігурації, що існувала на час забудови, садиба згадується 1880, зокрема у плані садибної ділянки, яка з 1872 належала міщанинові Б. Тетьоркіну. Невелику частину плану нинішнього фасадного будинку займали дерев’яні крамниці, на місці теперішнього навчального корпусу стояли передбачені до зносу тимчасові будівлі, на місці господарського корпусу був сарай, на нині порожньому місці кордону між сучасними № 38 і 40 (тоді № 36 і 38) – дерев’яний сарай. Суміжною садибою № 40 (нині № 38) володіла міщанка У. Погорельцева, садибою № 36 (нині № 34) – дружина колезького секретаря І. Мілковська, тильною суміжною садибою – чиновник Вишневський.
Наступному власнику Б. Міллеру ділянка належала з кін. 1880-х рр. до 1916, потім вона перейшла до його дочки М. Філіппової. Протягом цього періоду ніяких інших істотних змін, окрім зносу старих споруд і забудови наявними будинками, тут не відбулося. Особливість полягала в тому, що коли до 1909 суміжною ділянкою (нині № 40) володіли послідовно У. Погорельцева та М. Орябинська, то з 1909 її власником також став Б. Міллер, з 1916 – М. Філіппова. Певною мірою це вплинуло на характер використання цих поєднаних ділянок у 1910-х рр.
З 1905 тут містилися парафіяльні чоловіче і жіноче училища. 1993 здійснено капітальний ремонт садибного комплексу № 38.
Головний будинок, 1893. Репрезентує забудову садиби з боку вулиці, її головний функціональний елемент.
Завдяки вдалому пристосуванню у 1905 споруди під навчальний заклад її планувальна й функціональна схеми залишилися незмінними. Під час капітального ремонту 1993 було розібрано кахляні груби й змінено внутрішнє оздоблення приміщень.
Двоповерховий на бутовому стрічковому підмурку, цегляний, пофарбований, у плані прямокутний, з двома глухими торцями-брандмауерами. Перекриття пласкі по дерев’яних балках. Дах двосхилий, з бляшаним покриттям. Внутрішнє планування коридорне з двобічним розташуванням приміщень, капітальна стіна фіксує положення поздовжньої осі. Вздовж останньої орієнтовано розподільчі коридори, з яких здійснюється вхід у суміжні кабінети адміністративного й навчального призначення. У середню частину першого ряду приміщень винесено парадні сходи, розташовані на поперечній осі, яка відіграє роль осі симетрії об’ємно-просторової композиції споруди. Сходи кам’яні, двомаршові, з металевим гратчастим огородженням.
Стилістику витримано у ремінісцентних формах т. зв. неогрецького стилю.
Фасадам властива тектонічна врівноваженість, збалансованість елементів. У вирішенні головного тридільного фасаду застосовано центрально-осьову схему, роль композиційної осі відіграє розкріповка, ледь винесена у плані споруди й підвищена виразним ступінчастим аттиком з головним входом. Її вирішення є максимально виразним: на першому поверсі, трактованому як цоколь, головний вхід фланкують рустовані лопатки, на другому поверсі замість лопаток застосовано мотив здвоєних канелюрованих пілястрів коринфського ордера, що фланкують віконний проріз. Поле аттика акцентує виразна люкарна, біля неї – рельєф з датою «1863» (неточна).
Композиційну роль центральної розкріповки підтримують симетричні бічні, на дві віконні осі, частини, флангові площини яких, на зразок центру, виділено рустованими лопатками на першому поверсі та канелюрованими пілястрами коринфського ордера на другому. Як і центральна, обидві бічні частини увінчано високими ступінчастими аттиками з додатковим виразним елементом – трикутним фронтоном. Тимпани фронтонів оздоблено виразними ліпленими елементами рослинного рисунка, стилістично загострює й ушляхетнює композицію рельєфний меандровий фриз.
Стіну прорізано здвоєними (у бічних частинах) і строєними (у проміжних ділянках) порталами розташованих поряд прямокутних вікон, на другому поверсі обладнаних профільованими рамковими лиштвами, підвіконними поличками внизу та замковими каменями й широкими прямими сандриками нагорі. Фриз проміжних ділянок, заповнений ліпленням рослинного характеру, створює досить широку горизонталь, яка разом з профільованими міжповерховим гуртом, карнизом, стрічкою цоколю підкреслює переважно горизонтальний характер композиційного вирішення фасаду. Загалом його вирізняє високий професіоналізм компонування та деталювання. Дворовий фасад значно скромніший, центральну вісь і бічні частини тут не виділено, домінантні горизонталі представлені міжповерховим гуртом і вінцевим карнизом.
Внутрішнє планування збереглося, але первісний характер оздоблення інтер’єрів майже повністю втрачений.
Коридори й тамбури розчленовано системою лучкових підпружних арок, підлоги тамбурів викладено мармуровою крихтою. У кабінетах зберігся старовинний паркет. Металеве огородження сходів сучасне.
Будинок є найвиразнішим і найціннішим елементом комплексу, в якому збереглися первісний характер фасадів та внутрішнє планування.
Господарський флігель, 1894.
Одним із торців приблокований до навчального корпусу, формує протилежний головному корпусу бік подвір’я.
Капітальним ремонтом 1993 дещо змінено характер дворядного планування першого поверху, призначеного під стайні й каретний сарай. Було зроблено перепланування обох рядів, великий проїзд у середній частині першого поверху закладено й перероблено на вікно, влаштовано новий головний вхід через отвір у торці споруди.
Двоповерховий на стрічковому бутовому підмурку, цегляний, у плані прямокутний. Двосхилий дах з бляшаним покриттям, має слухове вікно. Внутрішнє планування дворядне, ряди приміщень пов’язані анфіладно. Вхід на поверхи споруди – через поверхи сусіднього навчального корпусу, додатково – на першому поверсі через кам’яний ганок, підведений до отвору торцевого брандмауера.
Стильове вирішення – у ремінісцентних формах класицизму. Чоловий фасад прорізано поповерховим ритмом рідко розташованих прямокутних вікон, оздоблених вузькими лиштвами у класицистичному дусі, вгорі завершених прямими сандриками (другий поверх) і клинчастими перемичками (перший поверх), унизу – підвіконними поличками. Наріжні частини підкреслено поповерховими лопатками, переважно горизонтальний характер композиційного вирішення акцентовано стрічкою вузького цоколю, профільованими лініями міжповерхового гурта та вінцевого карниза. Первісне оздоблення інтер’єрів не збереглося.
Споруда є важливим елементом історичного комплексу.
Навчальний корпус, 1894. Формує бічну частину подвір’я, є проміжним між господарським та головним корпусами, з останнім пов’язаний закритою двоповерховою галереєю-переходом на дві віконні осі. Був прибудований до бічної частини тильного фасаду, створивши з ним спільний, Г-подібний у плані об’єм. Згідно з проектом, з другого поверху дворового фасаду було виведено «залізну галерею», втрачену під час капітального ремонту 1993. Не збереглися й указані на плані проекту двомаршові сходи в центральній частині.
Двоповерховий на стрічковому підмурку, цегляний, пофарбований, у плані прямокутний. Тильна стіна є глухим брандмауером. Дах вальмовий, з шиферним покриттям. Внутрішнє планування коридорне, з однобічним розташуванням приміщень (кімнати винесено у бік подвір’я). Входи до поверхів споруди – з головного корпусу через галерею-перехід, додатково на перший поверх – з боку подвір’я.
Стильове вирішення – у ремінісцентних формах класицизму. Дворовий фасад є чоловим. Площину стін прорізано ритмом невеликих прямокутних вікон, завершених клинчастими перемичками, стіну вінчає тягнутий карниз простого профілю. Первісне оздоблення інтер’єрів не збереглося.
Споруда є важливим елементом історичного комплексу зі збереженими характером пристосування та стильовими ознаками.
Комплекс – зразок розвиненої міської садиби кін. 19 ст., пристосованої пізніше під навчальний заклад, має значну історико-архітектурну цінність.
1903 Київська міська управа, зважаючи на особливий попит щодо освіти для дівчат в історичній місцевості «Новоє Строєніє», ухвалила відкрити на свій кошт при Третьому міському двокласному училищі (1901) жіноче відділення. Воно почало діяти в 2-й пол. 1905 у найманому приміщенні. За рішенням Міської думи обом училищам: Либідському чоловічому міському парафіяльному училищу № 15 і Либідському (згодом – Бульварному жіночому міському парафіяльному училищу № 19) було присвоєно найменування Олександрівських (в ім’я царя Олександра ІІ). Їх розмістили в орендованих приміщеннях суміжних садиб Б. Міллера (вірогідно, в 1905). У чоловічому училищі на час відкриття навчалося 165 осіб (1901), у жіночому – 91 особа (1905), у штаті обох закладів було 10 спільних для них педагогів. Пізніше в садибі № 38 містилося також Татьянинське жіноче міське парафіяльне училище № 43.
На поч. 1920-х рр., після націоналізації нерухомого майна, у спорудах розташовувалася трудова школа, що давала неповну середню освіту. З 1970-х рр. до 1993 у будинках садиб за сучасними № 38 та 40 була середня школа-інтернат № 17 м. Києва.
З 1993 у садибі міститься ліцей освітньої корпорації «Гранд».
Література:
ДАК, ф. 163, оп. 41, спр. 4383; ЦДІАКУ, ф. 707, оп. 227, спр. 74; оп. 229, спр. 231; Весь Киев: Адресная и справочная книга на 1899 год. – К., 1899; – … на 1901 год. – К., 1900; – … на 1906 год. – К., 1906; – … на (1909–1915) год. – К., 1909–1915.
Джерело: Звід пам’яток історії і культури України. – К.: 2003 р., т. 2 (Київ), с. 1090 – 1091.
