Садибний будинок
Головний будинок поч. 19 ст. [Пам’ятники архітектури УРСР, що перебувають під державною охороною: список. – К.: Держбудвидав, 1956 р., с. 90].
Головний будинок поч. 19 ст. [Постанова Ради міністрів УРСР “Про впорядкування справи обліку та охорони пам’ятників архітектури на території Української РСР” № 970 від 24.08.1963 р.].
Садибний будинок 1823 р. [Державний реєстр національного культурного надбання: пам’ятки містобудування і архітектури України (проект). – Пам’ятки України, 1999 р., № 2-3].
Усадебный дом, 1823 г. Построен с использованием типового проекта жилого городского дома из серии, утвержденной в 1809 г.
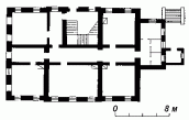
Кирпичный, оштукатуренный, прямоугольный в плане, двухэтажный, с подвалом, переходящим из-за покатости рельефа со стороны заднего фасада в цокольный этаж. Перекрытия плоские, подвала – сводчатые, планировка коридорная с двусторонним размещением помещений. К северному торцевому фасаду примыкает пристройка XIX в. с тамбуром. Средняя часть главного и тыльного фасадов выделена раскреповкой и завершена треугольным фронтоном. Первый этаж фасадов рустован. Сооружение – уникальный пример использования типового проекта для постройки усадебного дома. [Памятники градостроительства и архитектуры УССР. – К.: Будівельник, 1986 г., т. 4, с. 110-111].
