1985 г. Памятники градостроительства и архитектуры
Вигляд з північного заходу [Памятники градостроительства и архитектуры УССР. – К.: Будівельник, 1985 г., т. 3, с. 184]
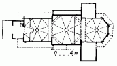
СОБОРА БОГОРОДИЦЫ ЦЕРКОВЬ, 1792 г. Датируется по надписи над западной дверью.
Деревянная, трехсрубная, трехглавая. Состоит из квадратного центрального сруба, к которому примыкают с запада – прямоугольный бабинец, с востока – пятистенный граненый сруб с низкими боковыми помещениями. К бабинцу позднее пристроен крытый тамбур. Сооружение окружено поддашием на выпусках венцов. Срубы перекрыты несколько приплюснутыми главами на больших восьмериках одной ширины с четвериками. Стены срубов эаметно наклонены внутрь.
Памятник относится к произведениям галицкой школы народной архитектуры. [Памятники градостроительства и архитектуры УССР. – К.: Будівельник, 1985 г., т. 3, с. 184].
