Колегія єзуїтів
Колегія єзуїтів 1759 р. [Пам’ятники архітектури УРСР, що перебувають під державною охороною: список. – К.: Держбудвидав, 1956 р., с. 29].
Колегія єзуїтів 1759 р. [Постанова Ради міністрів УРСР “Про впорядкування справи обліку та охорони пам’ятників архітектури на території Української РСР” № 970 від 24.08.1963 р.].
Колегія єзуїтів 1759 р. [Державний реєстр національного культурного надбання: пам’ятки містобудування і архітектури України (проект). – Пам’ятки України, 1999 р., № 2-3].
ИЕЗУИТОВ КОЛЛЕГИЯ, 1756 – 1759 гг. (ул. Мицкевича, 1). Построена по проекту архит. Ю. Каршницкого.
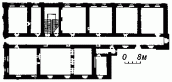
Здание каменное, в стиле барокко, прямоугольное в плане, двухэтажное, коридорной системы. Помещения перекрыты крестовыми сводами. Главный западный фасад, стилистически увязанный с архитектурой расположенного рядом костела, акцентирован разорванным барочным фронтоном с волютами. Фасады декорированы плоскими пилястрами, оконными наличниками и сандриками. [Памятники градостроительства и архитектуры УССР. – К.: Будівельник, 1985 г., т. 3, с. 99 – 100].
