1925 р. Деревяні дзвіниці і церкви Галицької України
Церква в с. Старе Село 1741 р. (рис. 30-33).
Старе Село за Сиховом має церкву у віддаленю 2 км від від шляху Львів-Галич. На одвірку головного входу є надпис про поставленя церкви р. 1742. У селі є перекази, що церкву сю перенесено з иншого місця, тому можливо, що р. 1742 є роком перенесеня, бо в таких разах майже завжди мінялися одвірки.
У „Сводній Гал.-рус. Літописи” Петрушевича (т. 1, ст. 234) під р. 1691. знаходимо, що в сусідньому с. Будькові на престольному євангелії 1690 р. була запись: „В Старому Селі була церква Усікновенія Честн. глави св. Іоанна, стояла коло замку, збудована князем Доминіком Заславским, тоді Старе Село було в посідані Катерини Радивиловоі гетьманової лнтовскоі.” А що не було двох церков в Старому Селі, присвячених одному святому, тоже можемо припустити, що церква є з XVII ст, яка зпершу стояла біля замку, а 1742 р. була перенесена на нове теперішнє місце.
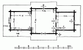
Церква є типовою для галицького і цілого придністрянского Поділля. В плані – трехкамерне заложеня з середньою квадратовою частиною і двома витягнутими прямокутниками – бабинцем і вівтарем.
Середня баня досить плеската, у верхній частині лінія бані близка до простої. Як і в Кошелівскій церкві бабинець і вівтар із середини мають двоспадисту стелю, а в жіночнику перекритя має особливу вогнуто-випуклу форму, на подобу S (рис. 31). Сей тип подільскоі церкви знаменується головно профілем бані. Задержуючи скрізь свою типову присадковатість, лінія бані то більш пуката, то в горі приближується до простої, чи вигинається в другий бік. Такі однобанні церкви є в Дубю біля Бродів 1720 р. і Звертові та Солонці біля Львова, Ходорові 1798 р. (Лушпин. IV), Деренівці 1715 р. (Лушпин. XII) і в Крехівському м-рю ц. св. Петра і Павла з пол. XVII ст., та багато инш. На Поділі за Збручем і на Брацлавщині сей тип однобанноі церкви з таким же характером бані і боковими причілками зустрічається постійно (досліди Е.Сецинского).
Джерело: Січинський В. Деревяні дзвіниці і церкви Галицької України XVI – XIX ст. – Льв.: 1925 р., с. 40 – 41.
