Садибний будинок
Головний будинок поч.19 ст. [Пам’ятники архітектури УРСР, що перебувають під державною охороною: список. – К.: Держбудвидав, 1956 р., с. 89].
Головний будинок поч. 19 ст. [Постанова Ради міністрів УРСР “Про впорядкування справи обліку та охорони пам’ятників архітектури на території Української РСР” № 970 від 24.08.1963 р.].
Палац поч. 19 ст. [Державний реєстр національного культурного надбання: пам’ятки містобудування і архітектури України (проект). – Пам’ятки України, 1999 р., № 2-3].
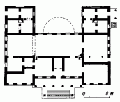
Усадебный дом, начало XIX в. В стиле классицизма, кирпичный оштукатуренный, П-образный 8 плане, одноэтажный с шестиколонным портиком-лоджией со стороны главного южного фасада, завершенного треугольным фронтоном. В портик ведет широкая парадная лестница. Капители колонн – упрощенного тосканского ордера. Двухколонный портик бокового входа утрачен. Планировка анфиладная, в средней части обширный зал. Северным фасадом дом выходил в фруктовый сад (не сохранился). Декор фасадов ограничен рустовкой углов и имитацией замковых камней на перемычках оконных проемов. [Памятники градостроительства и архитектуры УССР. – К.: Будівельник, 1986 г., т. 4, с. 110].
