2006 р. Втрачені пам’ятки сакральної архітектури Львівщини
Верхнє Синьовидне. Церква Св. Юрія
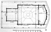
Збудована в 1790 році. Будівля тризрубна з вужчим прямокутним бабинцем і рівноширокими квадратовою навою та гранчастим вівтарем. Над навою на світловому восьмерику здіймалася велика шоломова баня, що завершувалася світловим ліхтарем з маківкою. Бабинець покривав двосхилий причілковий дах, а вівтар – п’ятисхилий. Оперізувало споруду опасання, оперте на різьблені стовпи й випусти вінців зрубів навколо вівтаря. Всередині простір пави розкривався у висоту до основи ліхтаря, у вівтарі було зімкнене склепіння, а в бабинці – трапецієве. Вузькі хори тягнулися вздовж західної стіни нави. 1939 року через аварійний на той час стан церкви її з наказу староства розібрано.
Драган М. Українські деревляні церкви. – С. 62, 102;
Сулик Р. Дерев’яні церкви Стрийщини. – Львів, 1995. – С. 36, 37.
Джерело: Слободян В. Втрачені пам’ятки сакральної архітектури Львівщини: церкви. – Пам’ятки України, 2006 р., № 3, с. 18.
