1999 р. Звід пам’яток Києва
Віра Черна
Житловий будинок, 1950-і pp.
(архіт.).
Вул. Кіквідзе, 3.
На червоній лінії забудови вулиці, на ділянці з незначним схилом рельєфу. Стоїть окремо. Збудований за типовим проектом серії 302 (арх. А. Добровольський), з використанням мотивів українського бароко.
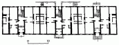
Триповерховий, цегляний, тинькований, у плані прямокутний, трисекційний, на 20 квартир. Кожна секція має парадний і допоміжний входи. На кожному поверсі у торцевих секціях – дві трикімнатні квартири, у середній – двокімнатні. Конструктивна система – поздовжні та поперечні несучі стіни, суміщені з внутрішніми стовпами. Дах вальмовий, покритий шифером. Об’ємно-просторове вирішення відбиває планувальну структуру. Головний фасад симетричний, його центральну вісь підкреслено розвинутою композицією порталу з тричвертєвими колонами із своєрідними капітелями. Осі входів закріплено щипцями з бароковими рисами, що розкріповують вінцевий карниз з низкою великих юніків. Над віконними прорізами останнього поверху – пояс з декоративних розеток. Всі скульптурні елементи виконано з бетону та пофарбовано у білий колір. Дворовий фасад вирішено лаконічно – основним акцентом є дві вертикалі балконів, що спираються на стовпи.
Вісник Академії архітектури УРСР. – 1951. – № 2.
Джерело: Звід пам’яток історії і культури України. – К.: 1999 р., т. 1 (Київ), с. 362 – 363.
