1999 р. Звід пам’яток Києва
Тетяна Григор’ева, Тетяна Трегубова, Лариса Федорова
Народна аудиторія, кін. 19 – поч. 20 ст.
(архіт., іст.).
Вул. Воровського, 26.
На червоній лінії вулиці, є одним із елементів її історичної забудови. Зведено на замовлення однієї з найстаріших громадських організацій міста – Київського товариства сприяння початковій освіті, заснованого 1882 р. Перший будинок, завершений 1895 р. (арх. М. Белелюбський), був капітально перебудований 1909 р. за конкурсним проектом арх. В. Рикова. Зберігаючи колишні розміри вздовж вулиці, його було розширено в глибину ділянки, перероблено фасади. Влаштування перегородок, добудова викликані новим характером використання в 1918 – 30 рр. під клуб, театр та інші заклади.
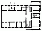
Двоповерховий, цегляний, у плані Т-подібний. У фасадній частині – сходова клітка, вестибюль, у затиллі раніше була лекційна зала, оточена з двох боків клубними й господарськими приміщеннями. Пізніше залу ліквідовано, тильна частина будинку набула коридорного планування. Перекриття плоскі. Декоративне оздоблення інтер’єрів не збереглося. Громадський характер споруди відбито в архітектурі головного фасаду. Його симетрична композиція ґрунтується на елементах ренесансної та барокової архітектури. До перших належить загальна урівноваженість композиції, мотив арок, плоский руст, карниз із вінцевим аттиком. До стилю бароко – розкріповані фронтони, рисунок картушів і овальні вікна. На рівні фриза в картушах – назва організації-замовника і роки спорудження.
Будинок – яскравий зразок нового типу споруд для культурно-просвітницьких організацій, поширених з 90-х pp. 19 ст. Тут була лекційна зала, бібліотека, кімнати для гуртків, приміщення чайної, в яких товариство здійснювало свою просвітницьку діяльність.
При Народній аудиторії діяло Товариство сприяння народній освіті, в правлінні якого працювали: Щербина Володимир Іванович (1850 – 1936) – історик, педагог, з 1925 – чл.-кор. ВУАН (голова правління); Риков Валеріан Микитович (1874 – 1942) – архітектор; Ківлицький Євген Олександрович (1861 – 1921) – історик, педагог. Завідував аудиторією київський інженер і педагог А. Думанський (мешкав у цьому будинку). Товариство влаштовувало по неділях народні читання і популярні лекції, щоденні концерти.
У будинку відбувалися вечори-концерти М. Лисенка, учнів його Музично-драматичної школи, зокрема класу професора співу О. Мишуги.
Тут містилася також Комісія медичних народних читань на чолі з Корчак-Чепурківським Овксентієм Васильовичем (1857 – 1947) – гігієністом, епідемюлогом, приват-доцентом університету і комерційного інституту, доктором медицини, акад. ВУАН (з 1921).
4 березня 1917 р. в лекційній залі відбулися установчі збори Київської Ради робітничих депутатів, 6 березня – перші легальні збори Київської організації РСДРП(б).
В 1918 р. викладач Музично-драматичної школи Л. Лук’янова організувала тут молодіжний драматичний театр (худ. Г. Комар). В 1921 р. в будинку почав діяти професійний український пересувний Шостий районний театр ім. Лесі Українки, відкритий з ініціативи П. Тичини. У складі трупи були актори В. Варецька, К. Кошевський, К. Лучицька, М. Надемський, П. Нятко, К. Осмяловська та ін.; худ. – К. Єлева. Працював до березня 1922 р. Пізніше будівля використовувалася як клубна установа.
В 1970 р. на фасаді будинку встановлено меморіальну дошку, яку 1978 р. замінено новою з сірого граніту з текстом про те, що в цьому будинку в 1917 р. відбулися перші легальні збори київської більшовицької організації. Тепер – один із корпусів інституту «Діпроцивільпромбуд».
Київ: провідник. – К., 1930;
Макушенко П. І. Архітектор Валеріан Микитович Риков. – К., 1967;
Протоколи Київської організації РСДРП (більшовиків) 1917 року // Літопис революції. – 1931. – № 4.
Джерело: Звід пам’яток історії і культури України. – К.: 1999 р., т. 1 (Київ), с. 298 – 299.
