2003 р. Звід пам’яток Києва
В’ячеслав Горбик, Олена Мокроусова
486.21. Житловий будинок 1890-х рр., в якому містилася редакція щорічника «Весь Київ» (архіт., іст.).
Вул. Саксаганського, 13/42. На розі з вул. Ш. Руставелі, на червоних лініях забудови.
Зведено у два етапи на території двох окремих садиб, що певний час належали різним власникам. Забудова цих садиб була характерною для Києва серед. 19 ст. Її складали дерев’яні малоповерхові, вільно розташовані на ділянках будівлі. Первісний триповерховий об’єм нового будинку зведено у садибі, сусідній з наріжною, що з 1879 належала домовласнику В. Сисоєву, який замовив у 1894 проект першої секції.
Передплата на проведення авторського архітектурного нагляду належить арх. О. Кривошеєву, тому можна припустити, що він же і був автором проекту.
Композиція Т-подібної у плані будівлі була симетрично-осьовою, з центральним ризалітом, який завершувався тридільним фронтоном і був акцентований восьмигранною вежкою з невеликим майданчиком у верхній частині, оточеним ажурним металевим парапетом. Вертикальне членування головного фасаду підкреслювали модифіковані пілястри, оброблені в нижній частині під руст. Покрівля мала ажурний парапет, балкони – грати аналогічного рисунка. Проїзд закривався металевими стулками воріт.
В кін. 1890-х рр. зведено будинок на наріжній ділянці, архітектура якого повністю повторювала форми збудованого раніше. В документах 1900 домовласника В.-Ф. Ясенецького (володів у цей час обома сусідніми садибами) будинок згадується як такий, що вже приносить прибуток. Вірогідно, В.-Ф. Ясенецький і був замовником робіт. Будинок використовувався як житловий (по дві п’ятикімнатні квартири на другому–третьому поверхах). У 1930-х рр. обидві секції надбудовано четвертим поверхом.
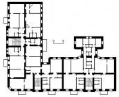
Чотириповерховий з розвиненим цокольним поверхом з боку вул. Ш. Руставелі, цегляний, пофарбований, у плані Г-подібний, трисекційний (дві секції з боку вул. Саксаганського). Перекриття пласкі, дах двосхилий, з бляшаним покриттям.
Оздоблений у стилі історизм. Композиція головного фасаду симетрична відносно наріжної частини будинку.
Обидва фасади на вулицях Ш. Руставелі і Саксаганського мають неглибокі вертикальні розкріповки, в які винесено парадні сходи. Прості прямокутні вікна другого і третього поверхів об’єднано по висоті пілястрами, обробленими в нижній частині під дощаний руст. Надбудований четвертий поверх має спрощений декор і стилістично відрізняється від первісного об’єму.
Розкріповки завершено прямокутними аттиками. Карниз між третім і четвертим поверхами, що первісно був вінцевим, утворений рядом зубчиків. На рівні третього поверху обабіч вікон вміщено декоративні ліплені підвіски.
Являє цінність як зразок типового прибуткового будинку кін. 19 ст. У забудові вулиць Ш. Руставелі і Саксаганського відіграє роль важливого містобудівного акценту, незважаючи на те, що навколишня забудова доповнилась у 1970-х рр. висотними спорудами.
На поч. 1900-х рр. в будинку містилися редакція і контора щорічника «Весь Київ. Адресна і довідкова книга», який виходив з 1899, у 1905–15 видавався С. Богуславським. Книга містить списки вулиць і садиб з позначенням власників, покажчики місцевих урядових установ та їх особового складу, навчальних закладів, лікарень, торговельних закладів, промислових підприємств, музеїв, бібліотек, громадських організацій, адреси жителів міста. Видання – важливе джерело з історії Києва. 1906 редакція містилася у будинку № 10 на цій же вулиці, пізніше – на вул. Миколаївській (тепер вул. Архітектора Городецького), 10 і Мерінгівській (тепер вул. Заньковецької), 6.
Література:
ДАК, ф. 100, оп. 1, спр. 2851; ф. 163, оп. 41, спр. 4611; Весь Киев: Адресная и справочная книга на … (1899–1915) год. – К., 1899–1915.
Джерело: Звід пам’яток історії і культури України. – К.: 2003 р., т. 2 (Київ), с. 1108 – 1109.
