Будинок Домбровських-Убальдіні (№ 21)
Розмір зображення: 600:800 піксел
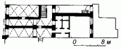
Житловий будинок 17 ст. [Пам’ятники архітектури УРСР, що перебувають під державною охороною: список. – К.: Держбудвидав, 1956 р., с. 49].
Жилий будинок 17 ст. [Постанова Ради міністрів УРСР “Про впорядкування справи обліку та охорони пам’ятників архітектури на території Української РСР” № 970 від 24.08.1963 р.].
Житловий будинок 17 – 19 ст. [Державний реєстр національного культурного надбання: пам’ятки містобудування і архітектури України (проект). – Пам’ятки України, 1999 р., № 2-3].
В 17 ст. кам’яниця належала італійцю на ім’я Ріпа Убальдіні, який у Львові дуже розбагатів. В 1656 р. його майно становило 1/30 майна всього міста.

