2003 р. Звід пам’яток Києва
Ніна Велігоцька, Ганна Мілгородська, Сергій Кілессо, Елла Піскова
443.9. Науково-технічна бібліотека ім. Г. Денисенка, 1980 (архіт., іст., мист.).
Займає центральне положення на західному боці новоутвореної «Площі знань». Підвищений рельєф зумовив утворення головним фасадом своєрідного подіума з гранітним облицюванням і парадними сходами. Споруджена з ініціативи ректора КПІ Г. Денисенка авторським колективом Київського науково-дослідного інституту експериментального проектування у співпраці з співробітниками вузу.
Автори проекту – архітектори В. Лиховодов (керівник), О. Зиков, В. Кисейко, інж. Д. Ганелін за участю Г. Денисенка, Е. Назаренка, В. Сидоренка та ін. Художник-монументаліст В. Пасивенко. Об’єм споруди – понад 56 тис. куб. м, заг. пл. – 13869 кв. м, з них корисна – 10533 кв. м, пл. книгосховища (на 2,5 млн. томів) – 4141 кв. м.
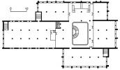
Загальна форма будівлі наближена до паралелепіпеда з асиметричними, трохи нижчими у плані прямокутними виступами зі сходу та заходу. Конструктивну основу складає збірний залізобетонний каркас з сіткою колон 6,0 Ч 6,0 м.
Південну частину займає восьмиповерхове книгосховище, північну – бібліотечні приміщення. Центром об’ємно-просторової композиції бібліотечної частини є критий семиярусний атріум, до якого з півночі, сходу та заходу прилягають чотириповерхові об’єми читальних зал. У простір атріума виступає напівкруглий у плані об’єм, де містяться сходи. Окрім того, є два швидкісні ліфти й поруч – двомаршові сходи. Навколо атріума згруповані п’ять приміщень для абонементів, п’ятнадцять спеціалізованих читальних зал на 1 500 місць з фондами відкритого доступу, конференц-зала (на шостому ярусі) та інші приміщення.
Лаконічну архітектуру екстер’єрів будівлі характеризує сполучення різних за формою і пропорціями прямокутних елементів, відсутність декоративного оздоблення. Фасади облицьовано білим інкерманським каменем, сходи і цоколі – гранітом. Три входи на першому поверсі головного східного фасаду виділено порталами.
Майже глухі стіни книгосховища прорізані вертикальними смугами вузеньких віконець-щілин. Чотириповерхові об’єми читальних зал виділено великими попарно згрупованими вікнами, обрамленими вертикалями виступних пілястрів, що утворюють світлотіні.
Створенню інтер’єра бібліотеки приділено велику увагу. Красу мармуру доповнює граніт. Черепашник сусідить з анодованим алюмінієм і травертином. Оформлення внутрішнього середовища витримано у світло-сірій кольоровій гамі.
Складно організований внутрішній простір атріума з верхнім освітленням динамічно розвивається по вертикалі, що зумовило активну роль його монументально-декоративного оздоблення (1982, енкаустика, арх. В. Лиховодов, худ. В. Пасивенко). До нього увійшли чотири самостійні, але об’єднані своєрідним космічним світосприйманням композиції: «Людина та земля» (перший ярус), «Людина та вода» (другий ярус), «Людина та вогонь» (третій ярус), «Людина та космос» (четвертий ярус).
Саме місце розташування стрічкових композицій на північній стіні, доступних огляду з різних точок інтер’єра, підкреслює їхню роль як візуального центру величезного багатоярусного простору. Мовою образотворчих форм художник відобразив різноманітність навколишнього світу. У кожному сюжеті, як у яскраво ілюстрованій книзі, розкривається багатогранність буття людини і природи: праця та боротьба, науково-технічний прогрес і картини природи. Стихія руху, присутня в кожній композиції, об’єднує їх у цілісний епічний твір.
Цікава композиційна знахідка – багатоярусне вирішення простору та насичена змістовність монументального живопису – дали змогу авторам не тільки активно вписати його в інтер’єр, але й створити яскравий образний еквівалент архітектурних ритмів.
Будівля науково-технічної бібліотеки є вдалим зразком синтезу архітектури й монументально-декоративного мистецтва кін. 1970-х – поч. 1980-х рр. Бібліотека створена 1898 одночасно з КПІ. Першим директором у 1898–1902 був М. Біляшівський. Спочатку містилася у першому приміщенні КПІ – будинку Комерційного училища на сучасній вул. Воровського, 24, потім – у хімічному павільйоні інституту (корпус № 4), в 1901–79 – у головному навчальному корпусі. 1965 бібліотека одержала статус науково-технічної.
1 вересня 1980 прийняла перших читачів у новому приміщенні. Нині це одне з найбільших книгосховищ Києва, фонди якого складають бл. 3 млн. примірників книг, з них 1 млн. – навчальної літератури.
У червні 1998 бібліотеці присвоєно ім’я професора КПІ Денисенка Григорія Івановича (1919–98) – вченого у галузі електричних мереж і систем, чл.-кор. АН УРСР (з 1969), заслуженого діяча науки і техніки УРСР (з 1969), Героя Соціалістичної Праці (1986). Ректор КПІ у 1971–87, голова Ради ректорів вузів київського регіону (з 1974). Один з провідних спеціалістів України у галузі виробництва та розподілу електроенергії. Зробив значний внесок у розвиток науково-дослідної діяльності інституту, впровадження нових форм співробітництва з науковими установами та підприємствами. Велику увагу приділяв розбудові комплексу КПІ. Під його безпосереднім керівництвом було розроблено генеральний план перспективного розвитку вузу. За період ректорства Г. Денисенка побудовано бл. 20 нових об’єктів: навчально-виробничі корпуси, шість гуртожитків, бібліотеку, палац культури та інші споруди, завдяки чому інститут потроїв свою навчально-матеріальну базу, на якій, в основному, функціонує і досі.
1998 на фасаді будинку встановлено гранітну меморіальну дошку з барельєфним портретом Г. Денисенка (автор – А. Підлісний).
Тепер на третьому ярусі – приміщення комп’ютерного центру, на четвертому – Центру культури і науки ФРН «Гьоте інститут».
Література:
Григорій Іванович Денисенко // Київський політехнік. – 1998. – 28 трав.; Київський політехнічний інститут: Нарис історії. – К., 1995; Константинов В. О. Ректори КПІ. – К., 1998; 70-річчя члена-кореспондента АН УРСР Г. І. Денисенка // Вісник АН УРСР. – 1989. – № 4; Товстенко Т. Д. Комплекс Киевского политехнического института // Архитектура СССР. – 1990. – № 3; Хто є хто: Професори національного технічного університету України «КПІ». – К., 1998.
Джерело: Звід пам’яток історії і культури України. – К.: 2003 р., т. 2 (Київ), с. 960 – 962.
