1976 р. Монументальна дерев’яна архітектура лівобережної України
С. Таранушенко
Троїцька церква, збудована в 1710 р.
Церква належить до того типу п’ятиверхих хрещатих церков, план яких складається з сполучення чотирьох шестигранних рукавів (центральна дільниця внизу окремого зрубу не має), у яких зруб стін центра вищий за зруби стін рукавів.
Час побудови Троїцької церкви в Пакулі зафіксовано різьбленим написом на вхідних західних дверях.
Про Троїцьку церкву в Пакулі Ф. Гумилевський пише: «Храм весьма замечателен и по древности своей, и по своему виду. Он очень высок и обширен, был с оболонью или опасанью… ныне уже нет этой оболоньи. Изумительна при высоте храма плотничная постройка его, особенно венцов в трех куполах» [Гумилевский Ф. Историко-статистическое описание Черниговской епархии, стор. 659].
Огрубілі зовнішні форми верхів – наслідок численних ремонтів. Ці зовнішні форми верхів не відбивають характеру їх внутрішнього вигляду і не дають уявлення про первісний, назавжди для нас втрачений, зовнішній вигляд. Всередині зруб будови зберіг цілком непорушне первісний вигляд.
Збудовано Троїцьку церкву з соснових брусів товщиною 18 см (товщина брусів однакова від низу до верху) і шириною 25-22 см.
Церква Трійці в Пакулі посідає особливе і значне місце. Це – найстаріша з обміряних автором пам’яток народного монументального дерев’яного будівництва на Лівобережжі. На будівлю вжито матеріал найвищої якості. Дослідження пам’ятки переконує нас у тому, що церква Трійці – дійсно пам’ятка виключно високої будівельної техніки, твір талановитого і досвідченого народного майстра з яскраво виявленою індивідуальністю, художнє обличчя якого сформувалося, принаймні, наприкінці XVII ст.
Знищення опасання дуже негативно відбилося на пам’ятці: позбавило її одного з головних захисних засобів проти руйнуючих чинників (в першу чергу вологи), а разом з тим порушило гармонійність задуманих пропорцій будови. В первісному вигляді широко розгорнуті крила опасання, його похилий дах з бабинцями та полубанками створювали масивну на вигляд базу, з якої виростали стрункі лінії й площини зрубів стін чотирьох рукавів церкви. Опасання було гармонійною, необхідною складовою частиною композиційного задуму. Після знищення опасання зруби стін набули напружено-стрімких пропорцій, які майстер не передбачав.
Увінчує корпус зрубів стін тісно згрупована композиція 5 верхів. Зруби стін усіх чотирьох рукавів енергійним рухом перших заломів переходять у помірної стрункості восьмерики. Над другими заломами, перекритими низькими присадкуватими дашками, підносяться стрункіші за восьмерики ліхтарі, перекриті такими ж, як і восьмерики, плескуватими дашками. Отже, зовні пропорції верхів в цілому і окремих складових частин сприймаються як стримано стрункі і не дають підстав припускати, навіть здогадуватись про ту дивовижну динаміку, яка формує внутрішній об’єм церкви.
Чотиригранний зруб стін центральної дільниці високо підноситься над рівнем зрубів стін рукавів: карниз зрубу стін центра лежить на одному рівні з карнизами восьмериків південного й північного верхів і вище карнизів восьмериків бабинця і вівтаря. Восьмерик і ліхтар центральної дільниці не дуже різняться від восьмериків і ліхтарів рукавів, проте в цілому центральний верх – виразно виявлена домінанта в композиції верхів церкви.
Просвіти між чотиригранником центрального зрубу стін (вгорі) та восьмериками південного й північного рукавів менші за просвіти між тим же центральним зрубом і восьмериками вівтаря та бабинця, незважаючи на те, що південна грань першого залому південного рукава і відповідна грань північного рукава заломлені дуже стрімко (78, 80°), тоді як відповідні їм грані вівтаря й бабинця заломлено значно крутіше (57°). Опуклі дахи, що перекривають перші заломи рукавів, доволі високі і енергійно прорисовані, тоді як дах першого залому центрального верху – низький і невиразний за формою. Восьмерики усіх п’яти
[42]верхів далекі від геометричної правильності: всі стиснуті по осі південь-північ і всі відмінні один від одного. Зокрема, восьмерик центральної дільниці помітно менший за восьмерики вівтаря і бабинця. Ще більше відмінні ліхтарі – формою плану, висотою, формою і розміром прорізаних в їх гранях вікон. В кутках, де стикаються зруби стін рукавів, видно обрізані кінці колишніх дерев’яних довбаних риштаків-водовідливів.
Велику роль в оживленні зовнішнього вигляду церкви майстер відводить вікнам. Грані зрубів стін, орієнтовані по сторонах світу, прорізано великими вікнами, що мають форму рівноконечного хреста (перекликаються з формою плану будови). Решта вікон в корпусі зрубу стін – високі вузькі. У вівтарі й бабинці вони прорізані на південь і північ, а в бокових рукавах – в гранях, суміжних з південною чи північною. Восьмерики вівтаря, бабинця й центра та ліхтарі прорізано вікнами, орієнтованими в гранях по сторонах світу. Причому розміри їх не стандартні. Вікна восьмерика й ліхтаря центрального верху виглядають трохи завеликими відносно площі граней.
На перший погляд зовні пам’ятка виглядає як звичайна п’ятиверха церква найбільш поширеного типу [на Лівобережжі церкви з таким, як у Пакулі, планом: Трійці 1716 р. у Коропі, Миколи 1745 р. в Свіржі, Покрови 1764 р. в Ромнах, Покрови 1765 р. в Антонівці, Різдва 1774 р. в Шептаках, Михайла 1781 р. в Вільшані, Успенська 1781 р. в Золочеві, Покрови 1800 р. в Смілому. Тип п’ятиверхих хрещатих церков з невиступаючим в плані зрубом центральної дільниці сформувався як парадна, величава соборна будова в XVII ст. Тоді було збудовано на Лівобережжі ряд мурованих церков з таким же планом. Серед них такі видатні пам’ятки української мурованої монументальної архітектури XVII ст., як Троїцький собор в Густинському монастирі, собор в Ізюмі, собор в Новгороді-Сіверському, церква в Лютеньці. Продовжують будувати муровані церкви того ж типу і в XVIII ст. Такими були церкви: Катерини 1710 р. в Чернігові, Спаса 1716 р. в Прилуках, Спаса 1732 р. в Сорочинцях. Художньо-архітектурний образ кожної з цих пам’яток має виразно індивідуальний вигляд, кожна витримана в особливому пропорційному ладу. Значна частина цих будов – видатні унікальні пам’ятки. Такою унікальною є Троїцька церква в Пакулі], і до того ж роботи майстрів не дуже високої кваліфікації. Але досить переступити поріг бабинця, як зразу владно охоплює відчуття, що перед вами – пам’ятка неоціненного художнього достоїнства, одна з найдорожчих перлин дерев’яного монументального будівництва.
У створенні архітектурно-художнього образу будови пропорційним взаємозв’язкам частин церкви належить провідна роль. Тому, на нашу думку, доцільно перед описом інтер’єра дати аналіз обмірних креслеників церкви. Аналіз креслеників дасть тверду основу для конкретного з’ясування засобів, якими майстер створює виразні гармонійні, а часом і контрастні сполучення компонентів будови. На пропорціях побудована чіткість і виразність форм. В якійсь мірі аналіз обмірних креслеників допоможе зрозуміти бурхливий розвиток ритмічних і аритмічних сполучень граней і їх контурів в заломах та з’ясувати причини перегрупування тих сполучень в заломах різних верхів.
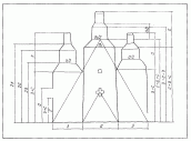
Вихідний розмір в побудові плану – довжина центральної дільниці (8 м); ширина плану дільниці – апофема рівностороннього трикутника з стороною, що дорівнює довжині центра; та ж довжина центра дає довжину плану південного й північного рукавів, а ширина центра дає ширину плану вівтаря; довжина вівтаря дорівнює повній його ширині; ширина плану бабинця дорівнює повній ширині вівтаря, довжина плану бабинця дорівнює ширині його; ширина південного і північного рукавів дорівнює половині діагоналі плану центра. Таким чином, внутрішня довжина плану будови дорівнює подвійній діагоналі центра, а ширина – подвоєній довжині того ж центра. Східна грань плану вівтаря дорівнює половині ширини вівтаря, південна й північна грані – половині діагоналі центра. Західна грань бабинця дорівнює половині діагоналі південної половини плану дільниці, а південна і північна – дорівнюють половині діагоналі центра (а також північній і південній граням вівтаря). Східна й західна грані південного і північного рукавів дорівнюють половині довжини плану вівтаря; західні стінки рукавів (разом з заплечиками) дорівнюють половині повної довжини плану центра; північна і південна грані плану рукавів дорівнюють половині діагоналі південної половини центра.
[44]Всі вищезазначені розміри взято точно. Розбивка плану в натурі проведена без деформацій. Зруби восьмериків (їх плани, висота) уже не такі точні, а форми їх менш геометрично правильні [пропорції для майстра пакульської пам’ятки – не самоціль, не канон, якому деякі менш обдаровані майстри коряться беззастережно. Могутній талант майстра використовує канонічні пропорції там, де вони допомагають чітко окреслити основні стержньові контури чи лінії кістяка будови, і відходить від канонічних приписів там, де вважає потрібним виявити тонкі відтінки виразності архітектурно-художнього образу]. У восьмерика центральної дільниці ширина дорівнює половині ширини зрубу стін вгорі, а довжина – половині довжини зрубу стін (теж вгорі). У восьмерика бабинця ширина дорівнює половині ширини плану бабинця, а довжина – половині довжини плану центра. У восьмерика вівтаря ширина дорівнює половині ширини плану вівтаря, а довжина – повній ширині восьмерика. У восьмерика південного рукава ширина дорівнює ширині восьмерика центра (половині ширини верху зрубу стін центра вгорі), довжина – половині довжини плану дільниці, а довжина шестигранної основи восьмерика – довжині південної грані плану дільниці. У восьмерика північного рукава ширина дорівнює ширині восьмерика центра і ширині восьмерика південного рукава, а довжина – довжині північної грані плану дільниці і наближається до довжини восьмерика південного рукава.
[45]Ще дальше від геометричної правильності відійшли ліхтарі. Всі вони відрізняються формою і розмірами плану, висотою зрубиків, нахилами граней. У ліхтаря центральної дільниці довжина дорівнює довжині південної чи північної грані восьмерика тої ж дільниці, а ширина ліхтаря дорівнює половині повної довжини того ж восьмерика. У вівтарному верху повна довжина зрубу ліхтаря дорівнює довжині південної чи північної грані вівтарного восьмерика, а ширина зрубу ліхтаря дорівнює довжині західної чи східної грані восьмерика тієї ж дільниці. Розміри останніх ліхтарів близькі до розмірів вівтарного ліхтаря, але з деякими відмінами. Ці відміни чітко виступають на обмірних кресленнях, але значно менше помітні в натурі.
Внутрішня висота центральної дільниці складається з двох основних частин: зрубу стін і верху. Висота зрубу стін дорівнює сумі діагоналі і ширини плану дільниці, а висота верху – довжині плану дільниці, тобто висота зрубу стін більш ніж вдвоє переважає висоту верху. Це переконливе свідчення того, що майстер приділяв зрубу стін значну увагу, надавав зрубам стін в утворенні архітектурно-художнього образу будови великого значення. Грані зрубу стін мають значний нахил всередину; на висоті 17 м зруб звужується на 1 м, тобто кожна грань дає нахил в 6 см на кожний 1 м висоти в поздовжньому розрізі і біля 5 см в поперечному.
Перший залом центрального верху заготовлявся на землі за допомогою двох шаблонів-трапецій. У першої трапеції (для складання західної і східної граней) основа дорівнює повній довжині зрубу стін (вгорі), верхня грань – половині нижньої грані і висота – 1/4 основи. У другої трапеції (для складання південної і північної граней) основа дорівнює повній ширині зрубу стін (вгорі), верхня грань трапеції – половині основи і висота – така ж, як і у першої. Висота зрубу стін і першого залому центральної дільниці разом дорівнюють апофемі трикутника з стороною, що дорівнює довжині плану будови. Залом складався з настановою зменшити внутрішній об’єм дільниці з розрахунком, щоб довжина і ширина восьмерика становили половину повної довжини і повної ширини зрубу стін центра (вгорі). Таким чином, ширина восьмерика, як і плану дільниці, дорівнює апофемі трикутника з стороною, що дорівнює довжині восьмерика. Висота восьмерика дорівнює половині ширини зрубу стін дільниці (вгорі). Висота зрубу стін, першого залому і восьмерика дорівнює довжині плану будови.
[46]При заготівлі на землі зрубу другого залому центральної дільниці використано також 2 шаблони-трапеції. Трапеція для складання східної і західної граней мала основу, що дорівнює довжині восьмерика (вгорі), верхня грань становила половину діагоналі чотирикутника, в який вписується основа восьмерика, а висота дорівнювала половині висоти першого залому. Трапеція для складання південної і північної граней другого залому центрального верху в основі мала ширину восьмерика (вгорі), верхню грань, що дорівнює половині повної довжини восьмерика (вгорі), і висоту таку ж, як і у попередньої трапеції. Висота другого залому і восьмерика, разом узятих, дорівнює довжині восьмерика. У ліхтаря повна ширина дорівнює його довжині; довжина ліхтаря дорівнює довжині південної грані восьмерика; висота ліхтаря – його довжині.
Третій залом центрального верху в поперечному розрізі дає рівносторонній трикутник, а в поздовжньому – трикутник з висотою, що дорівнює половині висоти восьмерика. Нижня третина кожного з цих трикутників і послужила шаблоном для складання зрубу третього залому. Висота третього залому і ліхтаря, разом узятих, дорівнює висоті восьмерика. Загальна висота верху центральної дільниці дорівнює довжині плану дільниці, а загальна внутрішня висота дільниці – сумі довжини плану будови і половини довжини плану бабинця. Просвіт з центра до бабинця починається на висоті, що дорівнює ширині плану центральної дільниці. Крім зазначених вище взаємозв’язків у розмірах окремих частин, які використовувалися при складанні зрубів, слід відзначити ще інші, що коректували ті ж розміри, а саме: внутрішня висота центральної дільниці – висота рівнобічного трикутника, у якого основа – довжина плану будови, а боки – діагональ прямокутника, в який вписується план церкви. Якщо цей прямокутник поділити на два, розбивши довшу сторону навпіл, то діагональ половини дасть внутрішню висоту вівтаря чи бабинця. Висота восьмерика центрального верху (а також восьмериків вівтаря, південного і північного рукавів) дорівнює апофемі рівностороннього трикутника з стороною, що дорівнює ширині восьмерика центральної дільниці і дорівнює ширині восьмерика південного рукава.
Висота зрубу стін бабинця дорівнює повній ширині плану центральної дільниці і південного рукава, разом взятих. Перший залом бабинця в поздовжньому розрізі дає трапецію, яка становить нижню частину рівностороннього трикутника з стороною, що дорівнює довжині зрубу стін дільниці вгорі (західна і обидві суміжні грані першого залому бабинця сферично угнуті з метою поліпшення акустики). Шаблон-трапеція, за допомогою якого збирався на землі зруб першого залому бабинця (його західна і східна грані), мав основу, що дорівнювала довжині зрубу стін дільниці (вгорі), верхня грань трапеції дорівнює половині довжини плану центра і висота дорівнює 1/3 довжини основи. Довжина восьмерика дорівнює половині довжини плану центра, а ширина – половині повної ширини плану дільниці, висота ж – висоті першого залому. Другий залом бабинця в розрізі дає трапецію, що становить нижню половину трикутника з основою, що дорівнює довжині восьмерика, і висотою, що дорівнює половині повної довжини восьмерика дільниці. Верхня грань цієї трапеції визначає довжину ліхтаря. Висота другого залому дорівнює половині висоти восьмерика, висота ліхтаря – половині суми висоти другого залому і восьмерика. Третій залом в розрізі дає трапецію, що становить низ трикутника, близького до рівностороннього. Висота третього залому з ліхтарем разом дорівнює висоті восьмерика, висота верху бабинця – повній довжині плану центра (отже, верх бабинця вищий за верх центра). Внутрішня висота бабинця дорівнює довжині плану дільниці, центра і південної грані вівтаря, разом взятих. Крім зазначених розмірів, за якими заготовлявся і попередньо складався на землі зруб компонентів верху, можна вказати ще на такі взаємозв’язки частин верху бабинця: висота першого залому, восьмерика і другого залому, разом
[47]взятих, дорівнює апофемі рівностороннього трикутника з стороною що дорівнює довжині зрубу стін бабинця (вгорі); таку ж висоту мають восьмерик, другий залом, ліхтар і третій залом бабинця, разом взяті.
Висота зрубу стін вівтаря менша за висоту зрубів останніх трьох рукавів однакової висоти; висота зрубу стін вівтаря дорівнює ширині плану вівтаря і північного рукава, взятих разом. Відмінний від бабинця у вівтаря не лише зруб стін, але і зруби складових частин верху. Перший залом вівтаря (його східна і західна грані) заготовлявся за допомогою трапеції, у якої основа – довжина зрубу стін дільниці (вгорі), повна довжина верхньої грані трапеції, а значить і основи восьмерика вівтаря, дорівнює довжині восьмерика бабинця.
Висота першого залому вівтаря дорівнює 1/4 довжини плану центра. Висота першого залому і зрубу стін, разом узятих, дорівнює подвоєній [48]довжині плану дільниці, або сумі повної довжини плану центра і довжини південної грані вівтаря. Східна і західна грані першого залому вівтаря плоскі і похилені під кутами 57 і 52°. Різниця кутів викликана бажанням збільшити просвіт між восьмериком вівтаря та зрубом стін центра і тим зменшити навантаження східної грані зрубу стін центральної дільниці. Восьмерик вівтаря більше, ніж восьмерики інших дільниць, наближається до рівностороннього; його повна ширина дорівнює довжині, ширина – половині ширини плану дільниці, висота – половині ширини плану дільниці. Висота восьмерика і першого залому разом дорівнює південній грані плану дільниці. Другий залом вівтаря в розрізі дає трикутник, у якого боки дорівнюють висоті восьмерика. Нижня половина цього трикутника була використана як шаблон для заготівлі зрубу другого залому. Верхня грань трапеції визначила також розмір довжини і ширини ліхтаря. Висота другого залому визначається тим, що разом з висотою восьмерика і першого залому дорівнює ширині плану дільниці. Ліхтар вівтаря вищий за всі ліхтарі будови; над ним нема третього залому, як у бабинці. Висота ліхтаря дорівнює половині висоти восьмерика і першого залому, разом взятих, або половині довжини південної грані плану дільниці. Висота ліхтаря, другого залому і восьмерика, разом узятих, дорівнює також повній довжині плану вівтаря. Верх вівтаря вищий над усі верхи будови. Висота верху вівтаря дорівнює діагоналі чотирикутника, що становить південну половину плану центра, а внутрішня висота вівтаря, як уже вказувалось, дорівнює висоті бабинця.
Висота зрубу стін південного рукава дорівнює висоті зрубу стін бабинця (або повній ширині плану центра і південного рукава, разом взятих). Перший залом рукава має складну конструкцію. Південна грань його заломлена дуже стрімко (80°), тоді як значно коротша північна грань дає кут в 47°. Це викликано потребою досягти максимального просвіту між восьмериком рукава і зрубом стін центра і тим [49]перемістити центр ваги верху наскільки можливо ближче до південної грані зрубу стін дільниці, що навантажує цю грань якнайбільше. Довжина південної грані залому рукава від верхнього вінця зрубу стін до нижнього вінця зрубу восьмерика дорівнює східній грані першого залому вівтаря. Висота першого залому рукава дорівнює половині ширини зрубу стін дільниці (вгорі), а висота першого залому і зрубу стін разом дорівнює висоті зрубу стін і першого залому бабинця, або апофемі рівностороннього трикутника з стороною, що дорівнює ширині плану будівлі. У восьмерика довжина дорівнює половині довжини плану дільниці, а ширина і висота – половині ширини зрубу стін вівтаря (вгорі). Другий залом має грані, заломлені під різними кутами: південна під кутом 37° і північна під кутом 50° з метою ущільнення верхів південного рукава і центра, досягнення компактності згрупування їх. Висота восьмерика південного рукава дорівнює висоті восьме[50]рика центрального верху; висота другого залому і восьмерика південного верху, разом взятих, дорівнює висоті другого залому і восьмерика центральної дільниці. Ширина і довжина ліхтаря південного рукава, ліхтаря вівтаря і ліхтаря бабинця мають незначні відміни. Висота верху південного рукава дорівнює повній довжині плану дільниці і дорівнює висоті верху бабинця. Внутрішня висота південного рукава дорівнює довжині бабинця, центра і південної грані вівтаря (як і бабинця) будови.
Висота зрубів стін північного рукава і південного однакова. Північна і південна грані першого залому північного рукава заломлені під кутами 80 і 44°. Однакова висота першого залому у обох рукавів. Однакова ширина і висота восьмериків обох рукавів, але довжина восьмерика північного рукава більша, вона дорівнює довжині північної грані плану дільниці. Північна і південна грані другого залому північного рукава мають нахили 47 і 54°. Різниця в кутах нахилу південної і північної граней першого і другого заломів північного верху викликана тими ж потребами, що і різниця в кутах нахилу тих же заломів південного рукава. Висота другого залому і ліхтаря у обох рукавів однакова. Довжина ліхтарів також однакова, а ширина північного рукава на товщину вінця більша, ніж південного. Однакова у обох рукавів висота верхів, а також внутрішня висота дільниць.
Опалубка під хорами починається від підлоги на висоті, що дорівнює половині повної довжини плану бабинця; настил хорів – на висоті половини діагоналі квадрата, в який вписано план шестигранника бабинця. Верхній край билець лежить на висоті, що дорівнює апофемі рівностороннього трикутника з стороною, рівною ширині плану центра.
Вікна в зрубах стін закладено на висоті, що дорівнює півсумі ширини плану центра і південного рукава; верх просвіту цих вікон лежить на висоті, що дорівнює довжині плану центра. Центр хрещатого вікна припадає на вершину рівностороннього трикутника з стороною, що дорівнює довжині плану центра. В восьмериках вікна над верхнім вінцем зрубу стін закладено: в центральному верху – на висоті, що дорівнює половині ширини зрубу центральної дільниці (вгорі) мінус товщина бруса; в бабинці – на висоті, що дорівнює половині ширини зрубу стін центра вгорі. Від підлоги вікно в восьмерику бабинця лежить на висоті, що дорівнює довжині плану бабинця і центра, разом взятих. У вівтарі в восьмерику вікно закладено на один вінець вище, ніж у восьмерику бабинця, в північному рукаві – на висоті, що дорівнює довжині західної грані зрубу стін (вгорі), або на висоті, що дорівнює половині ширини плану бабинця. В південному рукаві вікно закладено в восьмерику на 2 вінці вище, ніж в восьмерику північного рукава. В ліхтарях вікна закладено над верхнім вінцем зрубу стін дільниці на висоті, що дорівнює: в центральному верху – ширині плану вівтаря (або половині довжини восьмерика над верхнім вінцем восьмерика); в бабинці – довжині плану дільниці (або половині довжини основи восьмерика); у вівтарі – довжині плану центра (або довжині ліхтаря над верхнім вінцем другого залому); в південному і північному рукавах – повній довжині плану бабинця (або половині ширини основи ліхтаря рукава над верхнім вінцем другого залому).
Висота просвіту, що сполучає центр з південним чи північним рукавом, дорівнює діагоналі чотирикутника, в який вписується план бабинця (або висоті рівностороннього трикутника, у якого основа дорівнює довжині плану будови, а боки – довжині плану центра і вівтаря, разом взятих). Центри голосників, прорізаних в південній і північній гранях центрального зрубу стін, містяться на висоті, що дорівнює сумі ширини плану центра і південного чи північного рукава.
Тепер ознайомимось з інтер’єром будови.
Коли при церкві ще було ціле опасання, глядач з цвинтаря потрапляв спочатку до опасання, а з опасання входив уже до бабинця. Невідомо, який вигляд мав інтер’єр опасання церкви в Пакулі. Можливо, оформлення його було скромне, як і у всіх відомих нам пам’ятках. Тому кожного, хто після опасання потрапляв у бабинець, вражали [51]пишність оформлення хорів, затіненість простору між ними, що змінялась яскравим освітленням простору бабинця над хорами. Зверху щедро лилося світло, на сході вгорі простір бабинця замикала стіна, оздоблена знизу різьбленими фестонами. Нижче за просвітом, що сполучав бабинець з центром, розкривався простір центральної дільниці, який на сході замикав різьблений золочений іконостас з соковитим живописом ікон. Внизу зруб бабинця відділяли від центра низенькі заплечники. Шестигранний зруб стін бабинця сприймається як висока струнка призма з нахилом стін всередину. Об’ем бабинця поділяють по горизонталі хори, що по периметру обходять його зовнішні грані. Частина зрубу стін над хорами (її можна спостерігати і з підлоги, і з хорів) яскраво освітлена трьома вікнами: одне, хрещате, прорізано в західній грані, по одному прямокутному – в південній і північній гранях. Вгорі зруб стін в південно-східному і північно-східному кутах за допомогою [52]похилих клинів переходить у восьмигранний зруб першого залому. Насправді переводять об’єм зрубу стін у залом не дощані клини (вони тільки закривають пазухи в кутах), а горизонтальні мости з брусів, які перекривають кути зрубу стін. В обох клинах прорізано по одному невеликому квадратному просвіту; вони, очевидно, виконували роль голосників, посилювали і поліпшували акустику. Перший залом бабинця – висока, струнка, зрізана зверху восьмигранна піраміда. Східна і західна грані залому, як зазначено вище, скомпоновано за принципом боків рівностороннього трикутника. Висота залому взята з розрахунком, щоб довжина і ширина восьмерика дорівнювали половині довжини і ширини плану дільниці. Західна і обидві суміжні грані опуклі; їх угнута поверхня скеровувала голоси співаків, що стояли на хорах, в напрямку до центральної дільниці. Інші грані залому плоскі. Усі грані залому звужуються догори: більші – сильніше, менші – слабше. Границю переходу зрубу стін в залом нічим не підкреслено.
Грані восьмерика, освітлені чотирма вікнами, орієнтованими по сторонах світу, чітко відмежовуються від залому. Зруб восьмерика має нахил граней всередину і значно звужує внутрішній простір верху. Форма його стримано струнка. Слід підкреслити одну дуже цікаву конструктивну, а разом з тим і декоративну властивість Троїцької церкви: ні в зрубі стін бабинця, ні у восьмерику немає жодного ригеля. Майстер був упевнений в міцності виведених ним зрубів. Більше того, ригелів немає ніде і в останніх чотирьох дільницях. В другому заломі грані заломлено крутіше (49, 48°), ніж у першому. Восьмигранний, видовжений по осі схід-захід, ліхтар – високий, витягнутих вверх пропорцій, освітлений чотирма вікнами. Вікна прорубано безпосередньо в зрубі ліхтаря; вони не мають ні луток, як вікна зрубу стін, ні дощатих обкладок в просвіті, як вікна восьмерика. Вони вузькі, високі; верхній край їх вирубано в вигляді гострокутного дашка. Завершує ліхтар стрімкий (73, 58°) третій залом, зверху пристелений плоским плафоном. Зруби стін першого залому і восьмерика виконані на високому технічному рівні, вони рівні, чисті. Зруби верху бабинця, починаючи з другого залому, – кострубаті. Шов між гранями нерівний, виведений не по шнуру, а зламчастий, зигзагоподібний; бруси одного вінця заходять в сусідній. Границя між другим заломом, ліхтарем та третім заломом не вирівняна в одну горизонталь, а ступінчаста, бо вінці ліхтаря, переступивши границю, частково потрапляють у залом і, навпаки, вінець залому сусідньої грані заходить частково у зруб ліхтаря.
Порівнявши верхи бабинця і вівтаря (за обмірними креслениками), помічаємо, що в загальних рисах вони подібні, але є у них і відміни: перший залом у бабинця вищий, ніж у вівтаря; восьмерик, навпаки, вищий у вівтарі, причому у бабинці він довший, а у вівтарі – коротший. Ліхтар у вівтарі вищий і не має третього залому, а у бабинця він нижчий, навіть разом з третім заломом.
Сходи на хори розташовано всередині спеціальної шестигранної рубленої клітки. Кінці вінців її врубано в північну грань зрубу бабинця (клітка розташована в північно-західному кутку бабинця). Вхід до клітки з заходу. Зверху вихід зі сходів на хори закривався лядою. Східці в клітці підіймаються спіраллю. Центр спіралі – в центрі клітки. Один кінець кожної пластини-сходини врубано в вінці зрубу клітки (чи грані церкви), другий в центрі клітки пришивався до кінця попередньої пластини, обтісувався так, що в центрі кінці сходів утворювали круглий стержень, від якого радіусами розходилися пластини-сходини. Подібної сходової клітки – рубленої всередині бабинця – у відомих нам церквах зустрічати не доводилося. Сходова клітка в церкві Юрія в Седневі прирубана до бабинця зовні. В Вознесенській церкві в Березному сходи містяться в слупі, прибудованому теж зовні бабинця.
Поміст хорів на границі бабинця і південного чи північного рукавів підтримують консолі – кінці випущених всередину церкви вінців зрубів стін обох рукавів і бабинця. На ці консолі одним кінцем покладено лежні, які другим кінцем врубані в південно-західну грань зрубу стін [53]південного рукава чи в північно-західну грань зрубу північного рукава Поверх лежнів настилались мостини, пришиті до лежнів дерев’яними кілочками. Так підтримувалася та частина хорів, що виходила в бокові рукави. У бабинці поміст хорів з заходу підтримували лежні, запущені кінцями в зруб стін, а з півдня і півночі – лежні, що одним кінцем трималися на консолях, а другий їх кінець запускався в зруб стін. Знизу настил хорів підшито опалубкою округлого вігнутого профілю. Чільний бік хорів – пишна різьблена балюстрада. Точені балясини на певних інтервалах заступають різьблені стовпчики. Завершують балюстраду різьблені бильця. Знизу її закінчує різьблений відлив
З одного боку хори об’єднують об’єм бабинця, центра і рукавів з іншого – їх багате соковите різьблене оформлення – важливий складовий елемент пластичного оздоблення інтер’єра. В атмосферу суворих, [54]монументальних, чисто архітектурно-просторових форм вноситься балюстрада з її пластичним оформленням, що складається з багаторазового повторення комбінацій дрібних (порівняно з архітектурними формами) орнаментальних мотивів.
Хори дають значну додаткову площу. Широко розкриті крила хорів дозволяють сприймати архітектурні форми будови з таких точок і в таких несподіваних ракурсах, про які, стоячи на підлозі, не можна і догадуватись. Ступінь ув’язки дільниць чітко виявляють грані, що відділяють дільниці одну від одної. Східна грань бабинця відкривається до центра на висоті 8 м, а грані з центра до бокових рукавів відкриваються вище – на рівні 10 м.
Зовсім інакше сприймається об’єднаний об’єм трьох дільниць – центра і обох бокових рукавів. Майстер підкреслено виділяє високий і широкий поперечний зал як головний просторовий об’єм, що складається з трьох дільниць (центра і обох бокових рукавів) і трактується як єдиний нерозчленований об’єм.
Північна і південна грані зрубу стін центральної дільниці починаються на висоті, що тільки на 5 вінців не досягає початку перших заломів рукавів. Лише на цій висоті зруб центра відокремлюється від бокових рукавів. Від бабинця центр відокремлюється нижче.
Головну увагу майстер приділяє завданню створити будівлю колосальної висоти. Для цього він використовує весь доступний йому арсенал засобів: реальну висоту і стрункість (пропорції) зрубів стін і верхів, а разом з тим допоміжні засоби – логічний розвиток одних форм з других; підвищення висоти верхів ілюзорними засобами, поступовим нарощуванням частоти ритмічних компонентів в компоновці форм верхів; використанням такого могутнього засобу, як світло.
Тепер розглянемо кожну дільницю окремо. Зруб стін центральної дільниці відокремлюється від об’єднаного внизу об’єму трьох дільниць лише на висоті 7-10 м. Спочатку відділяється центр від бабинця аркою, оздобленою знизу профільованими фестонами. Вище відмежовується він гранями від південного і північного рукавів.
Четверик центрального зрубу стін значно вищий за зруби стін усіх рукавів (дорівнює висоті зрубу їх стін, перших заломів і восьмериків, разом взятих). В південній і північній гранях четверика прорізано по одному квадратному голоснику. Верхній край їх оздоблено фестонами, подібними до фестонів західної арки. Вони мають акустичне призначення, сполучають порожнини трьох дільниць. Одночасно центр голосника позначає рівень верхнього краю зрубів стін південного і північного рукавів. Чотирма гостро заломленими клинами четверик переходить у восьмигранний зруб першого залому.
У первісному вигляді церква всередині була вся нефарбована. Збережені непофарбованими частини зрубів свідчать, що майстри уміли цінувати мужню красу зрубу, виведеного чисто, але без «зализаності». При такому вигляді зрубів архітектурні форми будови могли справляти враження лише завдяки простим, але гармонійним їх ритмам.
Круто заломлені грані першого залому центрального верху енергійно звужують і сміло виносять високо вверх внутрішній об’єм верху – переводять його у стрункий восьмерик. На відміну від четверика, форма першого залому значно вільніша. Ширші грані більш різко звужуються догори, ніж менші. Північно-західна грань на середині висоти вигнута назовні і звужена, а північно-східна в нижній третині прогинається досередини. Завдяки цьому шви між гранями втрачають монотонну прямолінійність, а їх зламчасті контури оживляють строгість форми зрубу.
Восьмерик – призма видовжена по осі схід – захід, як і план дільниці, тоді як об’єднаний об’єм низу будови витягнуто в напрямку південь – північ. В гранях восьмерика, орієнтованих по сторонах світу, прорізано четверо вікон. Грані невисокого другого залому переводять об’єм центрального верху у стрункий восьмигранний ліхтар, прорізаний чотирма вузенькими вікнами, прорубаними в горішній частині граней. [55]Завершує ліхтар коротенький, дуже круто заломлений третій залом, який зверху прикривав плоский плафон.
Композиційна схема і конструктивні засоби побудови центрального верху канонічні (класичні): високий четверик зрубу стін за допомогою чотирьох клинів переходить у перший залом, який має форму зрізаної восьмигранної піраміди, що різко збільшує реальну (а ще більше ілюзорну) висоту верху, а разом з тим значно звужує простір його (а також і вагу зрубу). Все це спрямовано на нарощування дійсної і ілюзорної висоти верху. Тенденцію до звужування внутрішнього простору, рух зближення граней залому перериває призматичний стрункий об’єм восьмерика. Грані його (як і у четверика) випростовуються і підіймаються вертикально. Грані восьмерика ми сприймаємо в різкому ракурсі. Заміна одних архітектурних форм другими, виростання одної з другої, ритм розвитку цих форм – один з засобів вирішення голов[55]ного завдання будівника: створити церкву колосальної висоти, маси якої нестримно злітають все вище і вище, легко, непомітно долаючи матеріальну вагу і опір матеріалу. Майстер уміє примусити будівельний матеріал і конструкції працювати з граничним напруженням, взяти від них все, що вони можуть дати. Одна реальна висота самого лише зрубу стін центра більше ніж вдвоє перевершує довжину і майже втроє ширину плану дільниці (дорівнює сумі діагоналі і ширини плану дільниці). Порівнюючи ці пропорції з пропорціями (теж напруженими) плану об’єднаного об’єму низу церкви (південний рукав – центр – північний рукав), де ширина вдвоє більша за довжину, ми зрозуміємо відчутну різницю між пропорціями, вжитими для плану будови, з одного боку, і пропорціями, якими оперує майстер у висотних розмірах зрубів – з другого.
Звертає на себе увагу зміна характеру рубки в зрубах верху, починаючи з першого залому. На місце рівної площі зрубу стін з рівними, по шнуру виведеними швами між гранями, приходить зовсім інше. Зруб стає чим вищим, тим кострубатішим. В першому заломі, особливо у вузьких гранях, кожний вищий вінець нижнім своїм краєм трохи нависає над нижнім, а шви між гранями стають нерівними. Ще більш зламчастими стають шви між гранями, і ще більш нерівними – площини граней у другому і третьому заломах та ліхтарі.
Не можна не звернути уваги і на те, що вікна в церкві розміщено дуже нерівномірно. В зрубах стін вікна прорубано на початку верхньої їх половини. Тому у бабинці нижня половина зрубу, особливо під хорами, освітлена слабо. Вище вікна розміщені в восьмериках та ліхтарях усіх дільниць. Отже, восьмерики і ліхтарі щедро залиті яскравим світлом, а верхні частини зрубів стін і перші заломи рукавів освітлені уже лише рефлексами світла, що падає зверху. Тобто характер освітлення будови здебільшого виразно контрастний, але не всюди. Верхівки залито таким сліпучим світлом, що воно розмиває чіткість їх форми, тоді як верхи зрубів стін, навпаки, дістають дуже мало освітлення. На одних ділянках будови освітлення поступово, поволі наростає чи слабшає, на інших – спостерігаємо контрасти: сліпуче освітлені площини лежать або поруч, або в недалекому сусідстві з такими, що ховаються в глибокій тіні.
Зруби стін працюють незначною кількістю граней великих мас і площин. В заломах, навпаки, об’єм формується значною кількістю дрібних граней. Чим вище лежить частина верху, тим грані стають дрібнішими. Разом із зменшенням розмірів граней змінюється лінійна ритміка їх контурів, логіка їх сполучень. Контури граней заломів, коли ми їх спостерігаємо з підлоги, складаються у візерунок з своєрідною системою побудови. Композиційна схема верху полягає в нарощуванні висоти шляхом переводу ширших за об’ємом форм у більш вузькі, у чергуванні зрубів призматичних (восьмерики, ліхтарі) з пірамідоподібними формами (заломами).
Ця зміна форм супроводжується зміною характеру рубки зрубів і, нарешті, використанням освітлення. І хоч елементів та засобів, за допомогою яких майстер формує об’єм, «ліпить» форми верхів, не так багато, проте при кожній зміні точки спостереження виявляється безліч нових варіантів композиційних рішень об’ємів, лінійної ритміки. З певних точок можна в ортогоналі чітко сприймати структуру тієї чи іншої окремої дільниці від долу до самої верхівки, ясно розрізняти кількість і порядок її компонентів. З других пунктів можна відразу охопити оком побудову не одного, а двох-трьох верхів церкви, простежити принципи їх компоновки, зрозуміти логіку розвитку задуму архітектора, усвідомити завдання, які він перед собою ставив, і засоби, якими він розв’язував їх. В церкві безліч і таких точок, звідки погляд сприймає архітектурні форми не в ортогоналі, а в ракурсах. З таких пунктів архітектура церкви повстає перед очима в новому аспекті. Архітектурні форми не одної, а кількох дільниць будови, їх окремі зруби, грані складаються у такі примхливі сполучення, перетинають одна одну під таки[57]ми несподіваними кутами і розглядаються в таких ракурсах, що архітектура церкви раптом збагачується новими виразними художніми цінностями.
Якщо форми і конструкції центрального верху канонічні, повторені сотнями, а може й тисячами пам’яток Лівобережжя і Правобережжя України, то форми й особливо конструкції верхів південного і північного рукавів неповторні. Принаймні, на Лівобережжі вони ніде більш не зустрічалися.
Північний рукав внизу – складова частина об’єму широкої поперечної зали. Відокремлюватися об’єм рукава починає лише при самому вершку зрубу його стін. Південна грань зрубу стін рукава з’являється на висоті тільки 10 м. Тому формування об’єму рукава в межах зрубу стін припадає на долю останніх 5 граней. Ширина плану рукава на третину менша за ширину бабинця, тому зруб стін рукава значно напруженіший в пропорціях за зруб бабинця; висота північної грані зрубу стін рукава втроє більша за її ширину і сягає висоти 12 м. Північна грань першого залому засклеплена під кутом 80°, тому грань стіни майже непомітно переходить у грань залому. Лінію перелому допомагають помітити лише суміжні грані, у яких вона чіткіше виявлена.
Починаючи з першого залому, конструкція північного верху має значні відміни від конструкції верху бабинця чи вівтаря тої ж церкви.
[58]Рубка п’яти граней залому (крім південної) звичайна: кожний вищий вінець коротший за попередній, отже, зруб залому виводиться у вигляді усіченої піраміди, але південна грань розпочинає собою низку аномалій. Вона не відділяється від зрубу стін центра дільниці у вигляді похилої до нього рубленої площини-трапеції, як у бабинці, з тим, щоб всі грані залому, зменшивши об’єм дільниці, на певній висоті перейшли в зруб восьмерика. В північному рукаві рубленої південної грані першого залому у вигляді трапеції зовсім немає.
Майстер добре знав «ахілесову п’яту» конструкції української типової дерев’яної церкви – переобтяження граней центральної дільниці вагою зрубів суміжних рукавів, що з часом викликало деформацію зрубу центральної дільниці. Зводячи верх вівтаря церкви в Пакулі, майстер досить відчутно змістив центр ваги восьмерика на схід, полегшивши цим навантаження східної грані центральної дільниці. При складанні зрубів верхів північного і південного рукавів майстер вдавався до більш радикальних заходів: відмовився від пірамідальної форми першого залому; заклав зруб восьмерика за принципом «костра»; максимально змістив маси зрубу восьмерика (а значить, і вагу цілого верху) дільниці в напрямку на північ північного рукава (і на південь – південного). Північній грані першого залому північного рукава він надав нахил в 80° і переклав, таким чином, на цю грань максимум навантаження. Решту ваги верху він розклав на дві грані першого залому – східну і західну таким чином: у верхній вінець східної і західної граней зрубу стін першого залому північного рукава, відступивши від північної грані зрубу стін центральної дільниці на 1/3 ширини рукава, майстер врубав довгий брус, зв’язавши ним згадані східну і західну грані зрубу залому стін. Відмітив на цьому брусі посередині частину, що приблизно дорівнювала довжині північної грані зрубу стін рукава (вгорі), яка і стала основою південної грані майбутнього восьмерика. Далі, між довгим південним брусом та східною і західною гранями зрубу залому майстер перекидає ще два коротші бруски. Перший короткий брусок врубує одним кінцем в довгий там, де буде західний кінець південної грані восьмерика під кутом в 37° до довгого; другий кінець короткого бруса врубує в західну грань зрубу залому. Цей брусок утворить основу південно-західної грані восьмерика. Аналогічно врубаний другий короткий брус стане основою південно-східної грані восьмерика. Нарешті, між цими брусками і північно-західною та північно-східною гранями залому врубано ще два, найкоротші бруски, що створять основу східної та західної граней восьмерика. Останні бруски знизу з підлоги виглядають, як два чорні косі трикутники, що нависають над східною і західною гранями залому. Пазуху між довгим брусом та гранню зрубу стін центральної дільниці зашито похилим дощатим щитом, а пазуху між південно-західним та південно-східним брусками і східною та західною гранями залому підшито горизонтальними трикутниками. І щит і трикутники знизу виглядають темними аритмічними плямами. У такий засіб майстер заложив «костер» – основу восьмерика. Сам восьмерик в плані перекошений, з гранями різної довжини кострубатої рубки. Грані восьмерика прорізано трьома вікнами. В південній грані восьмерика замість вікна прорізано лише щілину.
Другий залом визначається значним порушенням правильної форми і дуже кострубатим в’язанням вінців. Північна грань заломлена під кутом 47° до горизонту, а південна – 54° (з метою ущільнення верхів, досягнення компактності їх згрупування). У західної грані нижня частина до половини висоти розширюється, а верхня – звужується, суміжні ж – південно-західна та північно-західна грані – навпаки, посередині різко звужуються. Південно-східна грань різко звужена догори, а південна і північна звужуються мало. Частина верхніх брусів зрубу другого залому заходить кінцями то в одну, то в обидві сусідні грані. У північно-західній та західній гранях верхні бруски нависають над гранями зрубу залому (один менше, другий більше та ще й косо), а в південно-західній грані нависає не один, а два бруси, намагаючись [59]таким засобом сильно видовжену форму восьмерика і залому наблизити у ліхтарі до рівносторонньої. Але це мало вдається. Ліхтар – високий, стрункий, грані його дають значний нахил всередину. Зверху ліхтар прикриває плоский плафон. Третього залому північний рукав не має. Вікна у ліхтарі з дашками, як у ліхтарі центрального верху; їх троє; в південній грані вікна немає, лише в одному брусі прорізано щілину шириною, як вікно, а висотою менше ширини бруса.
Таким чином, в північному рукаві верх, починаючи з восьмерика, щедро освітлений. В зрубі стін рукава, як і у бабинці, троє вікон: хрещате в північній грані і двоє чотирикутних в суміжних гранях. Двері в північній грані зрубу стін шестигранної форми, лутки їх зовні оздоблені різьбленням.
Зазначивши різку відміну в техніці рубки верху і зрубу стін, мусимо визнати, що північний рукав вражає своєю висотою, напруженою стрункістю, нестримним пориванням вверх. Зазначена «вільна» рубка верху, якщо дивитись знизу, зразу не впадає в очі. Це виявляється лише при уважному розгляданні. Треба підкреслити, що північний рукав в композиції будови важить не менше, ніж бабинець, він рівноцінний йому компонент.
Південний рукав в основному дублює конструкцію, техніку рубки зрубів, форми і розміри північного рукава, але поруч з спільними рисами в ньому помітимо також і певні відміни. Найзначніша з них – форма і розміри восьмерика. Довжина його (по осі схід – захід) менша, ніж у північного рукава при однаковій їх ширині. Східна грань південного восьмерика нависає над гранню залому мало, зате напуск західної горизонтальної площини значно більший, ніж у північного. В північній грані восьмерика південного рукава замість вікна вирізано у двох суміжних брусах щілину, як і у південній грані північного восьмерика, але нижче. Різниця в розмірах південної і північної граней другого залому у південному рукаві значніша, ніж у північному: південна грань заломлена під кутом 37, а північна- 50°. Вибагливо зламчасті контури швів граней другого залому сприймаються ніби спроектований на площину складний за ритмом зірчастий візерунок. Другий залом виглядає так, ніби грані потрапили в якесь завихрення, що розметало їх у різні боки. Перехід другого залому в ліхтар проведено за допомогою також дуже сміливих підтісувань – знизу й збоку – верхніх брусів залому. Усі грані ліхтаря різного розміру. Площини північно-західної та східної граней ліхтаря утворюють з відповідними гранями другого залому щось подібне до лопатей зламаного пропелера. В північній грані ліхтаря прорубано в двох суміжних брусах квадратне вічко з стороною, вдвоє меншою за ширину вікна. Над одним вікном фарбою написано 1827 р. – дату, коли верхи всередині були побілені.
Треба підкреслити, що конструкція переходу від першого залому до восьмерика північного і південного рукавів за допомогою костра і утворення між верхами рукавів і зрубом стін центральної дільниці кошів свідчить, що майстер уважно вишукував конструктивні засоби, які могли б запобігти деформації зрубу стін центральної дільниці. В якійсь мірі цього йому пощастило досягти.
На Лівобережжі маємо ще один випадок, правда дещо простіший, використання кошів: в Трьохсвятській церкві в Лебедині. Ширше подібну конструкцію в побудові верхів з застосуванням костра і кошів вживали майстри західних областей України (церков Юри в Дрогобичі, церкви в Унятичах, Сколі) [10].
М. Драган конструкцію церковних верхів з кошами вважав запобіжним заходом проти затікання води в місцях стикання сусідніх зрубів [9, стор. 32]. Розглядаючи обмірні кресленики, опубліковані М. Драганом в його роботі, бачимо, що основне конструктивне завдання, яке вирішували майстри, було уникнути перевантаження верхами рукавів зрубу стін центральної дільниці. Тому верхи вівтарів у згаданих церквах віддаляють від східної грані зрубу стін центральної дільниці і переміщують центр ваги верху вівтаря якомога далі на схід, передаючи [60]найбільші навантаження на східну і суміжні південну і північну грані стін східної дільниці будови. Заради цього верх бабинця галицькі майстри іноді зміщали на захід так далеко, що частина верху виходила за межі плану нижньої частини бабинця. Таким засобом найбільша частина ваги верху передавалася на західну грань зрубу стін бабинця.
Вівтар церкви шестигранний в плані, високий зруб стрункий, з помітним нахилом стін всередину (5 см на 1 м висоти). З південним і північним рукавами він сполучається в кут без заплечиків. В західній грані внизу вийнято невисокий, але на всю ширину дільниці просвіт до центра, а над ним – слуховичок (приблизно на третину ширини грані й такої ж висоти), оздоблений зверху різьбленими фестонами. В південній і північній гранях розміщені двері до ризниці та паламарні.
Відділений від центральної дільниці глухим іконостасом, вівтар сприймається як ізольоване від останньої частини будови приміщення. В верхній половині зрубу стін троє вікон: велике хрещате на схід і чотирикутні високі на південь і північ. Південно-західний та північно-західний кути зрубу вгорі мають похилі клини, що оптично переводять шестигранник зрубу стін у восьмигранний перший залом. В дійсності переводить зруб стін у залом горизонтальний рублений міст, насланий поверх останнього вінця зрубу стін з брусів. Клини – трикутні, підшиті дошками; вони прикривають пазухи в кутах зрубу. В кожному клині прорізано по одному квадратному голоснику, що мав призначення, як і в бабинці, посилювати і поліпшувати акустику. Таке ж призначення мав, певно, і слуховик вгорі західної грані зрубу стін. Як зазначалось, ні у зрубі стін, ні у зрубах верху нема ригелів, майже обов’язкових в кожній церкві XVIII ст. Границя між зрубами стін і першого залому не виділяється, не підкреслюється. Грані зрубу стін м’яко, плавно переходять у грані зрубу першого залому.
Перший залом вівтаря виглядає високим, струнким. Його грані мають легку прогнутість площин всередину дільниці. Кути залому граней вибрано з таким розрахунком, що залом справляє враження спокійно упевненого розвитку руху вверх.
Границя, що відділяє перший залом від восьмерика, дуже чітка, бо грані восьмерика яскраво освітлені, тоді як простір першого залому потопає в приглушеній півтемряві. Грані залому звужуються вверх неоднаково: ширші-активніше, вузькі – слабше. Західна грань першого залому нахилена на 52°, східна (стрімкіша) – на 57°. Це викликано потребою збільшити віддалення між восьмериком вівтаря та зрубом стін центральної дільниці і тим зменшити навантаження східної грані зрубу стін центральної дільниці. А взагалі, як показує аналіз обмірних креслеників, майстер ставив перед собою завдання: зменшити ширину внутрішнього простору у восьмерику вдвоє проти ширини плану дільниці. План восьмерика трохи видовжений по осі схід-захід. Відношення висоти восьмерика до його ширини і довжини дозволяє охарактеризувати його як стримано стрункий. Висота кожної грані восьмерика мало не в 2 рази більша за її довжину. Другий залом стрімкіший від першого (кути нахилу граней 50 і 54°), але в натурі сприймається, навпаки, як крутіший за перший. Він різко звужує внутрішній об’єм верху. Розміщений між восьмериком і ліхтарем Другий залом освітлений значно щедріше, ніж перший, але слабше восьмерика і ліхтаря. Зруб ліхтаря – високий, стрункий, яскраво освітлений. Зверху ліхтар пристелений плоским плафоном, обтягнутим по краях профільованою обкладкою. Вікна у ліхтарі у формі п’ятигранників прорізані під самим плафоном: верхні дві грані сполучені під гострим кутом у вигляді дашка, прорубані безпосередньо в брусах зрубу, не мають ні луток, як вікна зрубу стін, ні обкладинок навколо, як вікна восьмерика. У ліхтарі вікон троє, по одному по сторонах світу; на захід вікна немає. На середині висоти західної грані в двох суміжних брусах вирізано щілину завширшки таку ж, як вікно, але низеньку. Характер рубки зрубів другого залому і ліхтаря різко відмінний від рубки низу вівтаря (як і в останніх дільницях). Зруб стін першого залому і вось[61]мерика – робота технічно першорядна, рівна, чиста; зруби другого залому і ліхтаря – кострубаті. Стики граней виведені не по шнуру; тут кожен брус кожної грані заходить в сусідню грань, тому стик має зігзагоподібний вигляд. Крім того, бруси не укладаються в площину; одні вискакують назовні, другі – западають вглиб. З усіх дільниць будови тільки вівтар пофарбований з низу до самого верху. Знизу по вікна в зрубі стін – брудно-синя фарба (недавня); вище по восьмерик – зеленувата (була раніше блакитною); вище верх побілений з намальованими жовтими паволоками під вікнами восьмерика. Такі ж паволоки намальовано у восьмерику південного рукава; в ліхтарі цього ж верху занотована дата виконання розпису – 1827 р.
Паламарня і ризниця збудовані одночасно з церквою, рублені впритул до боків вівтаря та східних граней бокових рукавів. Всередині пристелені по сволокам. До стін прибито полички на кронштейнах. Кронштейн і передні борти поличок оздоблені профільованим різьбленням. Внизу попід стінами йдуть лави. Стовпчики, на яких лежать лави, і передній борт лави теж прикрашено профільованим різьбленням.
Різьблення посідає помітне місце в оздобленні пакульської церкви. В оздобленні хорів воно відіграє головну роль. Значне місце належить різьбленню і в оздобленні одвірків. Вхідні двері до бабинця, південного і північного рукавів шестикутної форми, великі за розмірами, їх одвірки рублені з брусів 35?35 см. Одвірки до паламарні і різниці – чотирикутні, виготовлені з тонших брусів. Чільний бік луток західних вхідних дверей розбитий на два пояси; більший, зовнішній, вкриває різьблення, що складається з 6 рядків різних різьблених мотивів в такому порядку: перший рядок – коротенькі півциліндри, поставлені один до одного бочками; другий рядок – косиці; третій – овальні півнамистини, ніби нанизані на нитку; четвертий – ови; п’ятий- півциліндри, але дрібніші за перші; шостий рядок – стрічка з трикутничків. За орнаментальним поясом йде пояс з врізаним текстом, написаним то в один, то в два рядки. Внутрішній борт одвірка прикрашено різьбленою лиштовкою (дуже нагадує вишиванку), що складається з повторення ромбиків, сполучених кутами один з одним. Всі мотиви виконані горельєфом. Одвірки південного рукава тексту не мають. Орнаментальні мотиви південних одвірків і їх порядок такий: перший ряд – шнурок нанизаних овальних намистинок; другий – косиці; третій – чвертькульки, звернені овальним краєм до наступного четвертого рядка; четвертий – половинки овів; п’ятий – коротенькі півциліндрики. Внутрішній борт одвірок вкриває лиштовка. Дещо інші мотиви різьблення оздоблюють одвірки входу з паламарні до вівтаря: перший ряд – смужка з півциліндриків; другий – косиці; третій – Т-подібні мотиви, скомпоновані так, що «ніжки» одного ряду містяться між «перекладинами» другого, тобто мотиви розміщені послідовно один «ніжкою» вгору, наступний – «ніжкою» вниз; четвертий – півциліндрики в двох варіантах (рельєфних і контррельєфних), що йдуть один за другим, утворюючи хвилеподібну стрічечку; п’ятий – ті самі півциліндрики, що і в першому ряду.
Верх бильця хорів прикрашають такі мотиви: зверху – рядок овів, під ним – смужечка дрібних півциліндриків, далі – смужечка врізаних трикутників, потім – плоска смужка і внизу півциліндрики, лише крупніші за перші. Оздоблення відлива складається з одних півциліндриків і плоскої смуги між ними: два рядки півциліндриків, у яких вісь горизонтальна, і один ряд півциліндриків з вертикальною віссю. Дошка підшивки має знизу профільовані випиляні городки. Стовпчики між балясинами з лиця оздоблюють такі мотиви: в центрі – вервечка, по боках її – трикутники-зубчики, а з краю – лежачі півциліндрики.
Сволоки у пакульській церкві оздоблені мотивами, що прикрашають сволоки жилих будинків.
Як видно, мотиви, характер і техніка різьблення на одвірках, на оздобленні хорів і на сволоках мають багато спільного. Виникли ці різьблення, певно, в один час при будові церкви і вийшли з одних рук.
[Таранушенко С.А. Монументальна дерев’яна архітектура лівобережної України. – К.: 1976 р., с. 41 – 61]
