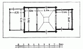
Церква св.Трійці
Розмір зображення: 800:587 піксел
Церква 1654 р. (дерев.) [Пам’ятники архітектури УРСР, що перебувають під державною охороною: список. – К.: Держбудвидав, 1956 р., с. 56].
Церква 1654 р. (дерев.) у с.Сихів [Постанова Ради міністрів УРСР “Про впорядкування справи обліку та охорони пам’ятників архітектури на території Української РСР” № 970 від 24.08.1963 р.].
Дерев’яна церква св.Трійці 17 ст. (Сихів) [Слободян В. Каталог існуючих дерев'яних церков України і українських етнічних земель. – Вісник ін-ту Укрзахідпроектреставрація, 1996 р., т. 4, с. 102].
Церква св.Трійці 1654 р. (вул.Майданна, 6, Сихів) [Державний реєстр національного культурного надбання: пам’ятки містобудування і архітектури України (проект). – Пам’ятки України, 1999 р., № 2-3].
Церква споруджена в 1654 р., в 1683 р. розписана. Греко-католицька (станом на 2001 р.).
Довідка на сайті
Довідка на сайті

