[1990 р.] Паспортна інформація
Поварня Братського монастиря з келіями
Пам’ятка історії, архітектури
XVІІ-ХІХ ст.
Розміщення:
м. Київ, вул. Г. Сковороди, 2.
Загальний опис:
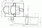
Будівля поварні цегляна, одноповерхова, оштукатурена, з глибокими склепінчастими підвалами (в підвал веде спеціальний вхід з південного фасаду), прямокутній в плані, з традиційним плануванням на дві половини – “восточную трапезную палату с плоским перекрытием и западную – поварню с сохранившимися коробовыми сводами”. Фасад внаслідок перебудов втратив свій первісний вигляд.
Особливої уваги заслуговує Г-подібний в плані підвал, який відповідає кухні та поварні, розташований на захід від сіней. Підвал значно більший, ніж сама західна прибудова. В мурі стін підвалу зроблені ніші, прослідковується підземний хід, який веде до Святодухівської церкви. Підвальне приміщення має спеціальні дверні прорізи, які розміщені поруч з головним входом, що веде в сіни трапезної.
Пам’ятник мав багато перебудов та ремонтів у зв’язку з частими пожежами та реконструкціями споруд ансамблю. Таким чином, споруда дійшла до нас із значними втратами: не зберігся первісний фасад, змінене планування, змінені склепіння в приміщенні трапезної палати.
Основні перебудови: у 1690-93 рр. у зв’язку із створенням поруч нової трапезної церкви й пристосування приміщень під келії; у 1740 р. у зв’язку з ремонтом Борисоглібської церкви, після пожеж 1780, 1811 рр.; у 1915 р. у зв’язку із загальним ремонтом монастиря.
В ХІХ ст. зроблені добудови двох приміщень келій.
Історична довідка, відомості про дослідження:
Поварня розташована в північній частині ансамблю Братського монастиря. Вона з’єднана в один об’єм із трапезною з церквою св.Духа прибудовами ХІХ ст. Прибудова зі сходу, що з’єднує поварню із трапезною, одноповерхова, з заходу – прибудова двоповерхова.
Історія будівництва поварні відома неповністю. Як з’ясувалося в результаті натурних досліджень 1979-1980 рр. (арх. Ю. Лосицький, мист. Л. Толочко), поварня старіша за трапезну. Це дозволило висунути гіпотезу, що споруда поварні, напевно, належала раніше засновниці Києво-Братського монастиря Г. Гулевичівні й була подарована нею Братському монастирю у 1615 р. Можливо, поварня була будинком Г. Гулевичівні й датується початком ХVІІ чи кінцем ХVI ст. Інші дослідники (Петров, Ернст) первісну споруду поварні ототожнювали зі старою трапезною, яка згадувалась Павлом Алепським 1653 р., під час його подорожі по Україні.
Реставраційні роботи:
Ремонтні роботи 1905-1906 рр.
Облікова інформація:
Взято під охорону згідно постанови Ради Міністрів УРСР № 442 від 26.09.1979 р.
Охоронний № : 15/4.
Межі охоронної зони і зони регулювання забудови: відповідно до постанови Ради Міністрів УРСР від 18 травня 1987 р. за № 183 “Про оголошення комплексу пам’яток Історичного центру м. Києва державним Історико-архітектурним заповідником “Стародавній Київ”, поварня з келіями знаходиться на його території, під його охороною згідно діючого законодавства.
Основна бібліографія, архівні дані:
Отчет о состоянии Киевской духовной Академии за 1870-1874 гг.- К., 1871.
Титов Ф.И. Акты и документы, относящиеся к Киевской Духовной Академии 1796-1891 гг.- Т. 2.- К., 1913.
Хижняк З.І. Києво-Могилянська академія.- К., 1981.
Ілюстративні матеріали:
Поварня з келіями. Схематичний план.
